Terrain à batîr avec projet de construction validé
Saint-Amand-les-Eaux 59230
0
Honoraires à la charge de l'acquéreur (Prix hors honoraires : 90000 euros).
Venez découvrir uniquement chez Jimmy DE SOUSA - Fox HABITAT OPPORTUNITÉ RARE ! UNE POSSIBILITÉ DE CONSTRUIRE LA MAISON DE VOS RÊVES SUR UN TRÈS BEL ENDROIT CALME ET TRÈS PRISÉ !
Vente d'un terrain avec une superficie total de 452m² dont 100 m² constructible de plain pied, situé à Thun-Saint-Amand, dans un secteur très apprécié.
Ce terrain est idéalement situé proches des commerces et des écoles ; vous serez également situé proches des grands axes routiers comme l'autoroute.
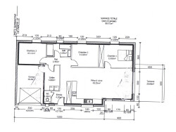
Vente terrain incluant permis de construire accepté avec plans et dessins pour projet de construction d'une maison individuelle de plain pied de 100m2, construite sur un vide sanitaire. ( plus de détails sur demande)
Composition : entrée, pièce de vie ouverte (cuisine, salon, salle à manger), 3 chambres, salle de bain, cellier, WC, garage + place de parking.
Détail du prix de vente : 90.000 TTC net vendeur (TVA 20%) 99.000 TTC FAI
Pour en savoir d'avantage, contactez-moi : ? Contactez Jimmy DE SOUSA : 06.31.89.76.90 (par sms également) pour une visite rapide ! Mandat : 933
Honoraires inclus de 10% TTC à la charge de l'acquéreur. Prix hors honoraires 90 000 . Les informations sur les risques auxquels ce bien est exposé sont disponibles sur le site Géorisques : georisques.gouv.fr.
Votre conseiller Fox Habitat Cambrai : Expert Immobilier indépendant - Jimmy De Sousa Carte T 59032018000038304 RCP 60732884. Pour plus de biens, visitez notre site internet www.foxhabitat.fr !
452 m²
219 €
452 m²
10 %
Contact Jimmy De Sousa
Contacter gratuitement à l'aide du formulaire ci-dessous.