Terrain a bâtir de 1.700m² avec permis de construire accordé
Salernes 83690
0
Honoraires à la charge du vendeur.
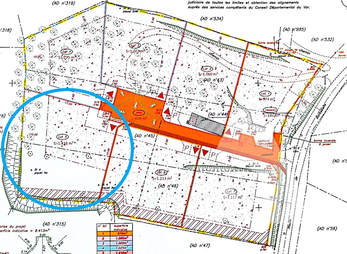
Situé à seulement 22 km de Draguignan, ce terrain de 1 700 m² offre une belle opportunité pour concrétiser votre projet de construction dans un cadre naturel et paisible. Bien orienté plein sud et arboré, ce terrain non viabilisé dispose des raccordements à proximité, à seulement 30 mètres, y compris le tout-à-l'égout. Le permis de construire a déjà été accepté, vous permettant de démarrer rapidement votre projet pour une maison individuelle de 110m² en R+1 composée d'une suite parentale en RDC, ouverte sur salon séjour salle à manger, de 60m². A l'étage 2 autres chambres avec une salle d'eau, WC. Garage attenant de 20m². Plans disponibles à l'agence. CUVE INCENDIE OBLIGATOIRE INCLUSE DANS LE PRIX DE VENTE Une belle parcelle, bien proportionnée, dans un environnement calme tout en restant proche des commodités. Pour plus d'informations et pour organiser une visite, contactez l'agence Sixième Avenue. Nous serons ravis de vous accompagner dans la réalisation de votre projet immobilier. Renseignement auprès de Cheyenne Duran au 0745107422 ou par mail cduran@sixiemeavenue.com R.S.A.C de Draguignan 988 263 471 Cheyenne DURAN (EI) Agent Commercial - Numéro RSAC : 988 263471 - DRAGUIGNAN.