Terrain à bâtir de 336 m2 hyper centre ville de Châteaugiron
Châteaugiron 35410
0
Honoraires à la charge de l'acquéreur (Prix hors honoraires : 106000 euros).
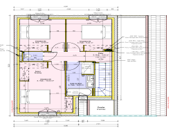
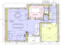
NOUVEAU TERRAIN À BATIR SUR CHATEAUGIRON ! Vous êtes à la recherche d'un projet immobilier dans une ville dynamique et familliale à proximité des commerces et des commodités ? Nous avons ce qu'il vous faut ! Le Cabinet Yvanez Immobilier vous propose de réaliser votre projet de construction avec un maître d'oeuvre renommé de notre secteur, sur un terrain de 336 m2 viabilisé, parfaitement situé, à seulement quelques pas des commerces et des commodités de la commune. Ce projet, situé en plein coeur de Châteaugiron, vous permettra de vous inspirer et vous projeter rapidement dans votre nouveau cocon familial. Une construction qui saura vous séduire pas son emplacement, son design et ses volumes. Ses atouts majeurs : 4 chambres, Pièce de vie de plus de 40 m2, stationnement, garage, jardin et proximité immédiate des commodités. L'ensemble de ce projet a été intégralement pensé pour vous créer un lieu de vie confortable et acceuillant. À vous d'y ajouter votre personnalisation ! Les projections réalisées sont une base de travail. Elles vous permettront d'imaginer et d'affiner les aménagements au regard de vos propres besoin. Contactez-nous pour obtenir des informations complétaires, par téléphone au 02 99 37 26 74 ou par mail : cabinet.yvanez@gmail.com PRIX HAI DU TERRAIN DE 336 M2 : 111 850 euros (inclus 5850 euros d'honoraires d'agence) + coût de construction de la maison à déterminer selon projet. Les informations sur les risques auxquels ce bien est exposé sont disponibles sur le site Géorisques : www.georisques.gouv.fr
336 m²
333 €
336 m²
5.52 %
Oui
Contact YVANEZ
Contacter gratuitement à l'aide du formulaire ci-dessous.