Terrain à bâtir de 470 m² Saint Pair Sur Mer - Lot 11
Saint-Pair-sur-Mer 50380
0
Honoraires à la charge du vendeur.
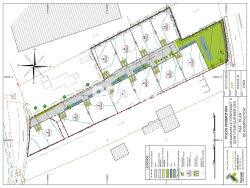
Dans un futur lotissement composé de 11 lots, terrain à bâtir d'environ 470 m², viabilisé (eau, électricité, tout-à-l'égout, télécom). Le terrain est libre de constructeur. Réalisez la maison de vos rêves, selon vos envies! Environnement calme et agréable. Proche des commodités : commerces, écoles, services à quelques minutes. La plage est à moins de 2 km. L'endroit idéal pour construire votre résidence principale, secondaire ou investir. Un cadre de vie agréable entre mer et campagne, dans une commune dynamique du littoral normand. Les informations sur les risques auxquels ce bien est exposé sont disponibles sur le site Géorisques : www.georisques.gouv.fr. Renseignements et visites sur demande ? Ne tardez pas, les lots sont limités ! Les informations sur les risques auxquels ce bien est exposé sont disponibles sur le site Géorisques : www.georisques.gouv.fr. Les informations sur les risques auxquels ce bien est exposé sont disponibles sur le site Géorisques : www.georisques.gouv.fr.