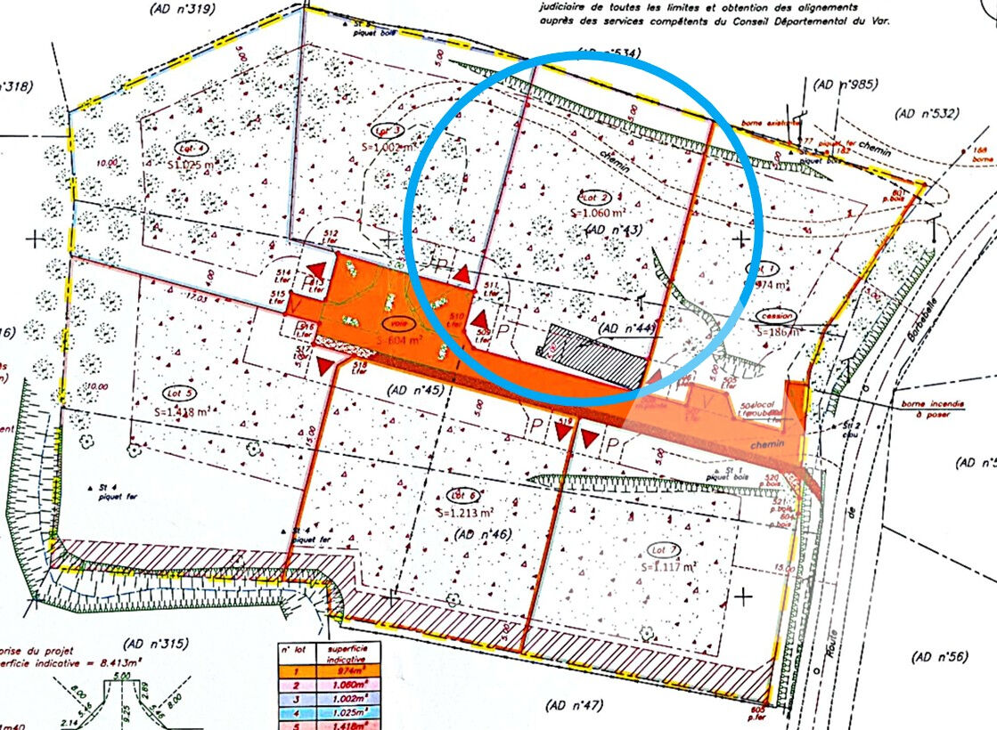
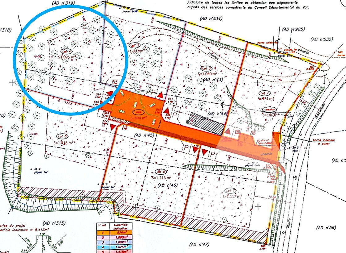
Terrain à bâtir viabilisé à Villecroze de 1.418m² LOT 5
Villecroze 83690
0
Honoraires à la charge du vendeur.
Terrain à bâtir viabilisé à Villecroze de 1.418m² LOT 5 Notre partenaire maison blanche, nous propose à la vente ce magnifique terrain viabilisé pour lequel il vous accompagnera pour la construction de vos rêves. Lotissement "La Ferrage'" viabilisé, tout-à-l'égout - emprise au sol 15 % (212 m²), R+1 et piscine autorisée A Villecroze, charmant village provençal, voici le terrain qui permet de concilier cadre naturel, vie pratique et projet architectural ambitieux. Oui, on parle d'un vrai terrain "coup de coeur" pas d'un mirage au fond d'un chemin de chèvres. Implanté au sein d'un lotissement à taille humaine (7 lots), le LOT 5 offre 1.418 m² plats et exploitables, déjà viabilisés (eau, électricité, télécom) et raccordés tout-à-l'égout. En clair : vous posez votre projet, on évite les chasses au trésor techniques. Emprise au sol : 15 % - 212 m² au sol autorisés R+1 permis : maison à étage possible pour optimiser la surface habitable Piscine autorisée : les étés varois ne demandent que ça Orientations et gabarits permettant d'imaginer une villa lumineuse, avec belles terrasses et stationnements aisés Environnement calme, esprit campagne, commerces et écoles accessibles en quelques minutes Prêt à dessiner votre maison et à lancer le permis ? Parlons implantation, prospects et délais pour sécuriser votre calendrier. Informations clés Superficie : 1.418 m² - LOT 5 Lotissement : "La Ferrage" (7 lots) Raccordements : viabilisé, tout-à-l'égout Règlement : emprise au sol 15 % (212 m²), R+1 autorisé, piscine autorisée Renseignements et visite : Kristen Carion Tél. : 07 837 537 64 - Mail : kcarion@sixiemeavenue.com Sixième Avenue - L'immobilier par M6 : une équipe locale, des méthodes modernes, et un accompagnement sans détour. On vous aide à bâtir votre chez-vous, pas à remplir des cases. LOUISE MAYEN (EI) Agent Commercial - Numéro RSAC : 939 052 361 - DRAGUIGNAN.