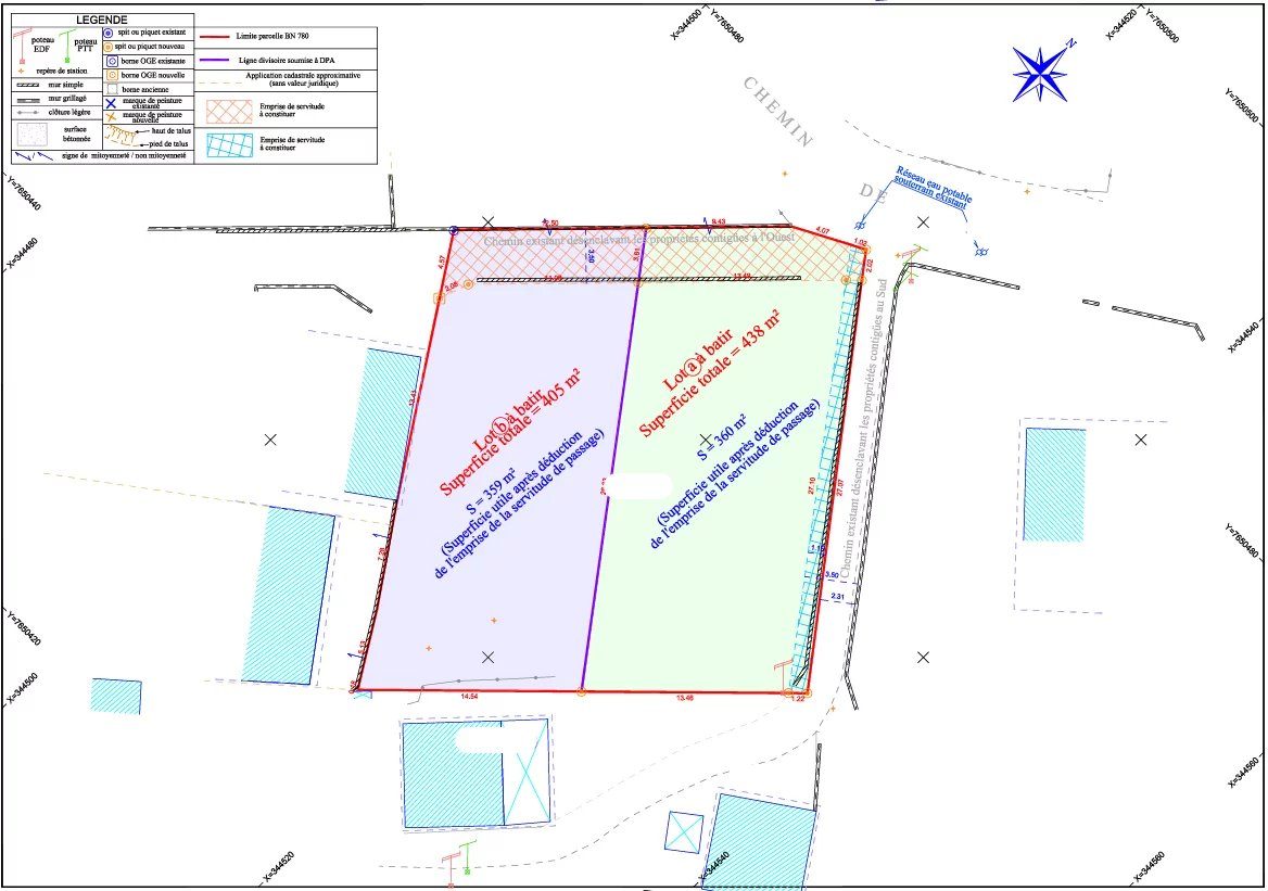
Découvrez ce terrain constructible de 290 m², idéalement situé : - Ecole à 200 mètres - Collège à 1 km - Lycée à 2,5 km - Commerce de proximité (primeur, boulangerie, pharmacie,...) à 1km. Profitez de la tranquillité d'un quartier résidentiel et la praticité d'un accès rapide aux commodités et aux grands axes, facilitant vos déplacements quotidiens. Zone UAv du plu : -Emprise au sol non réglementée -Jusqu'à 16mètres à l'égout du toit, et Jusqu'à 20 mètres au faîtage. - 2 mitoyennetés possible -20% d'espace perméable. Honoraires à la charge du vendeur. Les informations sur les risques auxquels ce bien est exposé sont disponibles sur le site Géorisques : www.georisques.gouv.fr. Pour plus d'informations ou pour organiser une visite, n'hésitez pas à nous contacter : 0262 490 490.