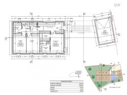
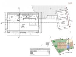
Terrain boisé constructible de 545 m2 au centre du village dans une impasse au calme .
Permis de construire accepté .
Petite maison ancienne sur le terrain (sur l'extrémité ). Possibilité de la réhabiliter, pour faire de la location ou recevoir la famille . ou de la démolir , au choix .
Plus d'infos par téléphone , n'hésitez pas à me contacter .
La présente annonce immobilière a été rédigée sous la responsabilité éditoriale de Mr Falco Ludovic, agent commercial (EI enregistrée au tribunal de commerce de Montpellier sous le numéro RSAC 444868707)
Référence agence : 11883
545 m²
679 €
545 m²
Contact Ludovic FALCO
Contacter gratuitement à l'aide du formulaire ci-dessous.