Honoraires à la charge de l'acquéreur (Prix hors honoraires : 100000 euros).
Situé dans un village agréable à 10 minutes de Nancy, ce terrain offre un cadre calme et recherché.
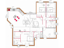
Un permis de construire accepté en 2021 et prolongé est donc en cours de validité : il permet l'édification d'une maison de 130m2 d'emprise au sol comprenant une cuisine ouverte sur un grand séjour, une buanderie, deux chambres, une suite parentale avec salle de bain et dressing et une seconde salle de bain. Aucune modification ou nouveau projet ne pourra être accepté du fait du changement de zone en 2025.
Idéal pour un acquéreur souhaitant construire sans attendre, en profitant d'un projet déjà validé.
Honoraires inclus de 5% TTC à la charge de l'acquéreur. Prix hors honoraires 100 000 . Les informations sur les risques auxquels ce bien est exposé sont disponibles sur le site Géorisques : georisques.gouv.fr.
3170 m²
33 €
3170 m²
5 %
Contact L'agence FMD
Contacter gratuitement à l'aide du formulaire ci-dessous.