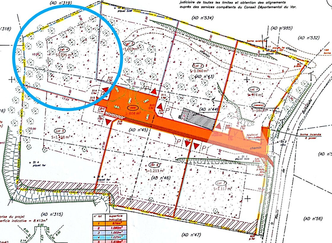
L'agence CI IMMO Garéoult vous propose à la vente ce terrain plat de 933 m², idéalement situé dans un quartier résidentiel calme et recherché de Garéoult. La parcelle, libre constructeur, offre une emprise au sol de 20 %, laissant place à de nombreuses possibilités pour la réalisation d'un projet personnalisé. Le terrain est clôturé sur trois côtés et boisé, il bénéficie d'un cadre privilégié et d'une belle intimité. Il est vendu non viabilisé, mais les réseaux d'eau, d'électricité et de télécommunications se trouvent en bordure de parcelle. L'installation d'un système d'assainissement autonome sera à prévoir, conformément à la réglementation en vigueur. Une opportunité rare de construire votre maison dans un environnement paisible et verdoyant, tout en restant à proximité des commodités et des axes principaux de la commune. Pour toute information complémentaire ou pour organiser une visite, notre équipe se tient à votre disposition. Les informations sur les risques auxquels ce bien est exposé sont disponibles sur le site Géorisques : www.georisques.gouv.fr. Contactez dès maintenant votre agence CI IMMO pour organiser une visite et découvrir tout le potentiel de cette propriété.