Honoraires à la charge de l'acquéreur (Prix hors honoraires : 104184 euros).
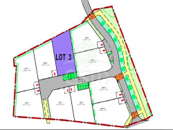
? Terrain à bâtir 601m² Montbazon À Montbazon, venez découvrir ce magnifique terrain à bâtir de 601 m², idéal pour concrétiser votre projet de construction dans un cadre agréable et recherché. Terrain entièrement viabilisé : Eau, électricité, assainissement et raccordement à la fibre optique sont déjà en place pour un confort immédiat. Environnement privilégié : Situé au fond d'une impasse, ce terrain bénéficie d'un calme absolu, parfait pour une vie familiale sereine. Emplacement idéal: À proximité immédiate du collège, de l'école maternelle et primaire, accessibles en toute sécurité grâce à une piste cyclable. Un vrai atout pour les familles. Libre choix du constructeur : Laissez libre cours à votre imagination et construisez la maison qui vous ressemble. Accessibilité optimale : Accès rapide et facile à l'autoroute A10 (axe ParisBordeaux), alliant tranquillité et praticité au quotidien. Parcelle spacieuse et bien proportionnée, parfaite pour accueillir une maison familiale avec jardin. Une opportunité rare sur le secteur, à découvrir sans tarder !
Honoraires inclus de 3.66% TTC à la charge de l'acquéreur. Prix hors honoraires 104 184 . Les informations sur les risques auxquels ce bien est exposé sont disponibles sur le site Géorisques : georisques.gouv.fr.