Honoraires à la charge de l'acquéreur (Prix hors honoraires : 187000 euros).
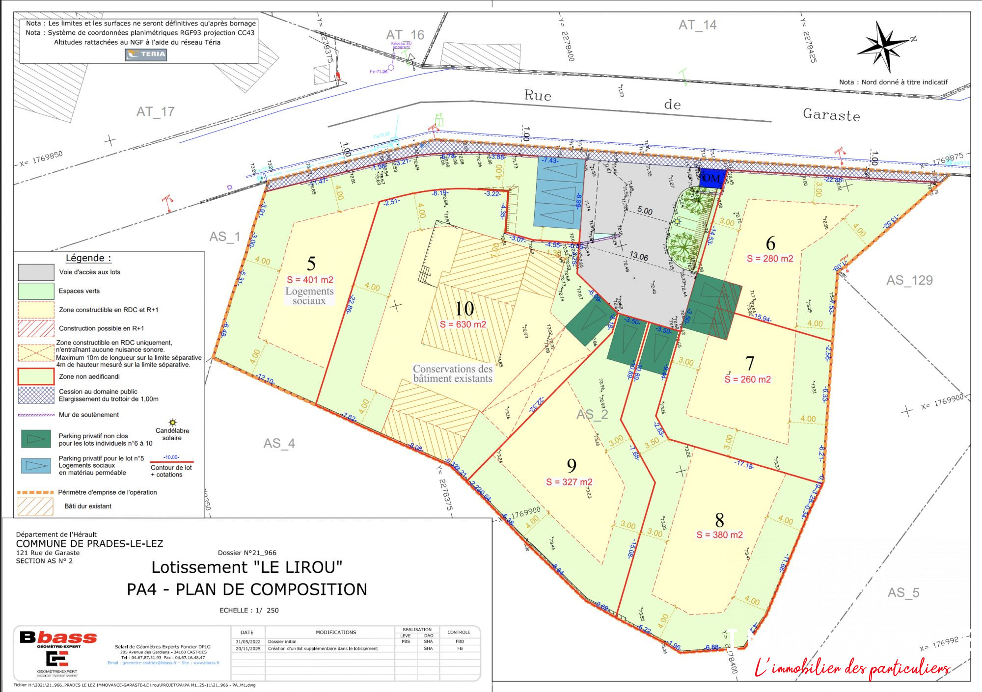
Terrain Constructible Exceptionnel - 244 m² - Prêt à Construire Votre Rêve Imaginez un espace où vos rêves de maison idéale prennent vie. Ce terrain constructible de 244 m², viabilisé et prêt à accueillir votre projet de vie, est une toile vierge attendant votre touche créative. Situé dans un quartier dynamique et bien desservi, ce terrain est l'opportunité parfaite pour construire la maison de vos rêves. Avec tous les raccordements essentiels déjà en place (eau, électricité, télécoms, gaz et assainissement), vous pouvez commencer votre projet de construction sans délai. Imaginez-vous concevant une maison qui reflète parfaitement votre style de vie, dans un environnement où tout est à portée de main. Ce terrain est situé dans un quartier animé et bien desservi. À seulement 5 minutes à pied, vous trouverez plusieurs commodités pratiques, dont des crèches, des écoles maternelles et élémentaires, des magasins d'alimentation générale, des restaurants et un parc et jardin pour des moments de détente en famille. Les transports en commun sont également bien desservis, avec plusieurs bus et tramways à proximité, facilitant vos déplacements quotidiens. Ne manquez pas cette opportunité unique de construire votre futur dans un cadre de vie idéal. Contactez-nous dès aujourd'hui pour plus d'informations et pour concrétiser votre projet immobilier.
Honoraires inclus de 6.42% TTC à la charge de l'acquéreur. Prix hors honoraires 187 000 . Les informations sur les risques auxquels ce bien est exposé sont disponibles sur le site Géorisques : georisques.gouv.fr. Ce bien vous est proposé par un agent commercial (Entreprise individuelle).