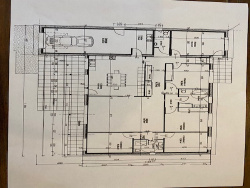
Ce terrain clos de près de 1000 m2 avec un début de construction représente une belle opportunité pour les futurs propriétaires. Le projet initial comprend la construction d'une maison spacieuse de 222 m2, disposant d'un grand espace cuisine/séjour de 70 m2, de 4 chambres, de 2 salles d'eau, d'un bureau, d'un cellier, de WC séparés, d'un garage et de terrasses. Les travaux préliminaires, tels que le terrassement, les fondations, le vide sanitaire et les branchements aux réseaux, sont déjà réalisés, ce qui facilite le projet de construction. L'emplacement proche du centre-ville permet de profiter de toutes les commodités à proximité, rendant la voiture superflue. Saint Astier est une ville dynamique et accueillante pour toutes les générations. On y trouve des garderies, des écoles allant de la maternelle au collège, un centre de loisirs, ainsi que de nombreuses activités sportives et culturelles, telles qu'un cinéma, un centre culturel, une piscine et diverses associations sportives. En outre, la ville dispose de groupes médicaux, d'une pharmacie et d'un hôpital local, sans oublier le marché hebdomadaire et les commerçants locaux. Les transports sont également facilités, avec un accès rapide à l'autoroute et une gare à proximité. Saint Astier est donc une ville où il fait bon vivre, alliant commodité et qualité de vie. Si vous êtes intéressé, n'hésitez pas à me le faire savoir pour plus de détails ou pour organiser une visite ! Pour toute question contacter : Corinne VIROL tél 06 11 08 53 45 et par mail c.virol@les-professionnels.immo. Le bien est proposé au prix de 208 000 EUR, les honoraires sont à la charge du vendeur. 'Les informations sur les risques auxquels ce bien est exposé sont disponibles sur le site Géorisques http://www.georisques.gouv.fr'. La présente annonce immobilière a été rédigée sous la responsabilité éditoriale de Corinne VIROL, agent commercial enregistré au RSAC de PERIGUEUX sous le numéro 931 950 364 titulaire de la carte de transaction immobilière pour le compte de la SARL LES PROFESSIONNELS DE L'IMMOBILIER, immatriculée au RCS Epinal sous le numéro 929 012 722 (sans détention de fonds)- Le barème d'honoraires est consultable sur notre site : https://les-rofessionnels.immo/uploads/Bareme.pdf Annonce rédigée et publiée par un Agent Mandataire -Selon l'article L.561.5 du Code Monétaire et Financier, pour l'organisation de la visite, la présentation d'une pièce d'identité vous sera demandée. - Annonce rédigée et publiée par un Agent Mandataire -
966 m²
215 €
966 m²
2
Oui
Contact Corinne VIROL
Contacter gratuitement à l'aide du formulaire ci-dessous.