TERRAIN AVEC VILLA T6 EN COURS DE CONSTRUCTION à SOTTA
Sotta 20146
0
Honoraires à la charge du vendeur.
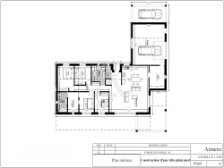
CASA CHA Immobilier® partenaire du réseau Interkab Porto-Vecchio vous propose en EXCLUSIVITÉ dans le très agréable hameau de « Petra Longa Filippi » commune de Sotta, à 15 minutes de Porto-Vecchio et de l'aéroport de Figari, une villa T6 de 148m2 en cours de construction sur une parcelle de 1117m2. Cette dernière construite sur un sous-sol complet offre de très belles vues sur le maquis mais également sur les montagnes. Si elle est vendue en l'état, elle peut également être vendue « clé en main » à 875 000EUR avec une mission complète d'Assistant à Maître d'Ouvrage, ainsi que de très belles prestations (baie à galandage, certains murs recouverts en pierres locales, enrochement du terrain avec des blocs de granite, escalier extérieur en pierre, piscine à débordement de 10x3.5m, portail et porte de garage automatiques, clôture...). Pour plus d'informations contactez-nous !
Les informations sur les risques auxquels ce bien est exposé sont disponibles sur le site Géorisques: https//www.georisques.gouv.fr
Agence immobilière immatriculée au RCS d'Ajaccio Siren 949401459 Carte T No20012023000000007
CASA CHA Immobilier®, a partner of the Interkab Porto-Vecchio network, offers you EXCLUSIVELY in the very pleasant hamlet of 'Petra Longa Filippi,' a commune of Sotta, 15 minutes from Porto-Vecchio and Figari Airport. A 6-room villa of 1593ft2 is currently under construction on a 12023ft2 plot. Built on a full basement, the villa offers beautiful views of the maquis and the mountains.If sold as is, it can also be sold 'turnkey' for EUR875,000 with a full Project Management Assistant service, as well as excellent features (sliding bay window, some walls covered with local stone, rockfill with granite blocks, exterior stone staircase, 10x3.5m infinity pool, automatic gate and garage door, fencing, etc.). For more information, please contact us!
Information on the risks to which this property is exposed is available on the Géorisques website: https://www.georisques.gouv.fr
Real estate agency registered with the Ajaccio Trade and Companies Register (RCS) Siren 949401459 T-card No. 20012023000000007 CASA CHA Immobilier® Porto-Vecchio à votre service
1117 m²
351 €
1117 m²
Nord
Oui
Contact ANDRINA
Contacter gratuitement à l'aide du formulaire ci-dessous.