Honoraires à la charge de l'acquéreur (Prix hors honoraires : 55000 euros).
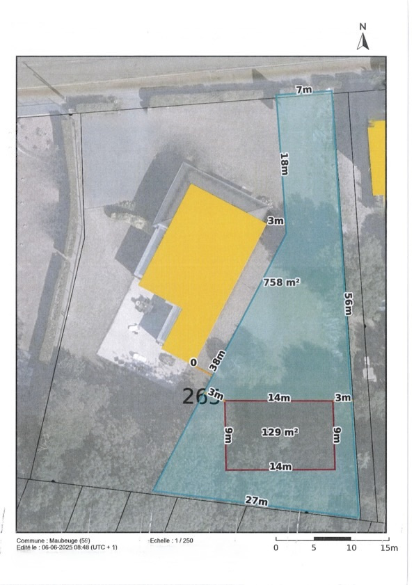
Venez découvrir ce beau terrain à bâtir sur la commune d'Englefontaine, d'une superficie de 1000M2, Longueur de la parcelle 60 métres, Largeur 17 métres, non viabilisé, libre de tout constructeur !
Ce terrain est situé dans un joli village, rue calme, face à l'étang, belle exposition et terrain plat.
Proche des commodités : écoles, commerces, à 10 minutes de Le Quesnoy et à proximité de Cambrai, Valenciennes, Bavay, Solesmes.
À VISITER SANS PLUS TARDER !!!
Les informations sur les risques auxquels ce bien est exposé sont disponibles sur le site Géorisques : georisques.gouv.fr.
Votre conseiller LOGIMM : Cathy SAROT Agent commercial (Entreprise individuelle). Retrouver l'ensemble de nos biens directement sur notre site internet !
1000 m²
55 €
1000 m²
Oui
Oui
Contact Iad France - Cathy SAROT
Contacter gratuitement à l'aide du formulaire ci-dessous.