Honoraires à la charge de l'acquéreur (Prix hors honoraires : 231000 euros).
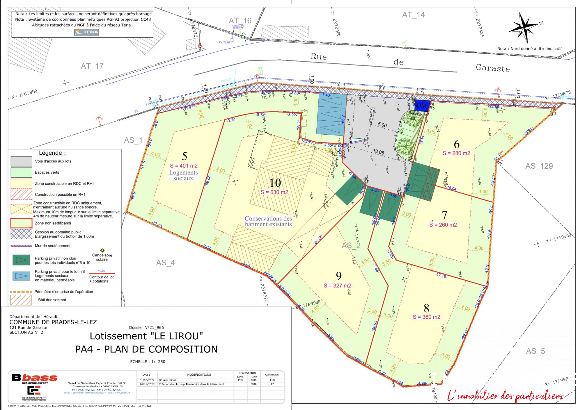
EXCLUSIVITE - PRADES LE LEZ -
Suite à une division parcellaire, au sein dans environnement calme et figé, vente d'un terrain à bâtir de 407m² viabilisé. Emprise au sol de 35% soit 147m² (nous contacter pour plus de précisions). Possibilité de maison de plain pied ou maison à étage. Terrain piscinable. Libre de constructeur, étude de sol G1 réalisée.
Les informations sur les risques auxquels ce bien est exposé sont disponibles sur le site Géorisques : georisques.gouv.fr. Ce bien vous est proposé par un agent commercial (Entreprise individuelle).
Votre conseiller IMMOVANCE SAINT MATHIEU DE TREVIERS : Corentin BIANCO-LEVRIN Agent commercial (Entreprise individuelle) RSAC 830 885 786 RCP RCACO-24-031082