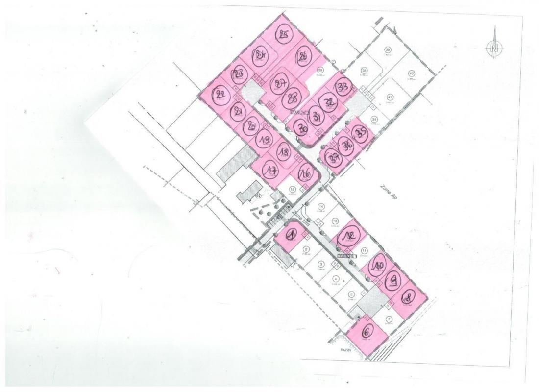
CASTELNAUDARY - Alicja Bak vous présente un Terrain constructible dans un futur lotissement de 7 lots, parcelle ( A) de 428 m2 , bornée, viabilisée ,prête à bâtir , à proximité de commerces et de l'autoroute.
Prix de vente : 69500 euros , nos honoraires à 5500 à la charge de l'acquéreur compris, soit 64000 euros hors honoraires.
TERRAIN LIBRE DE CONSTRUCTEUR .
A SAISIR RAPIDEMENT !!!
Pour visiter et vous accompagner dans votre projet, contactez Alicja BAK, au 0659018448 ou par courriel à a.bak@proprietes-privees.com
Cette présente annonce a été rédigée sous la responsabilité éditoriale de Alicja BAK agissant sous le statut d'agent commercial immatriculé au RSAC Carcassonne 888 187 101 auprès de la SAS PROPRIETES PRIVEES, Réseau national immobilier, au capital de 40000 euros, 44 ALLÉE DES CINQ CONTINENTS - ZAC LE CHÊNE FERRÉ, 44120 VERTOU, RCS Nantes n° 487 624 777 00040, Carte professionnelle T et G n° CPI 4401 2016 000 010 388 CCI Nantes-Saint Nazaire. Garantie GALIAN - 89 rue de la Boétie, 75008 Paris
Mandat réf : 392150 KAB - Le professionnel garantit et sécurise votre projet immobilier (8.59 % honoraires TTC à la charge de l'acquéreur.)
Alicja BAK (EI) Agent Commercial - Numéro RSAC : Carcassonne 888 187 101 - .
428 m²
162 €
428 m²
Oui
Contact Alicja BAK
Contacter gratuitement à l'aide du formulaire ci-dessous.