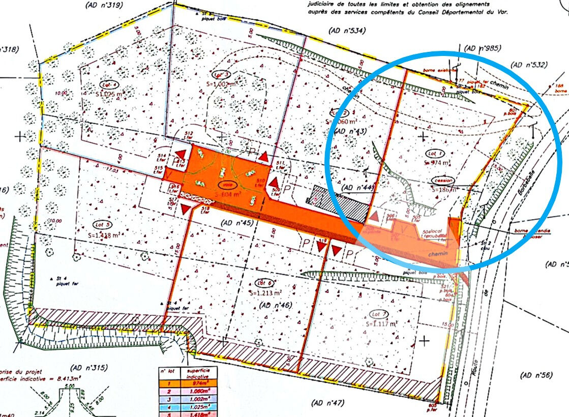
Bonjour, je vous propose à la vente ce Joli terrain de 986m² constructible.
Belle exposition, orienté sud-est, pas de vis-à-vis, quartier calme sur la commune de Villecroze . Vous avez sur ce terrain une emprise au sol de 12% ce qui correspond à une construction de 120m².
le quartier est très calme, la vue est dégagée et donne sur une forêt, toutes les viabilités sont faites, vous avez sur le terrain l'Électricité en limite de propriété ainsi que le tout-à-l'égout.
Le « petit » plus : Terrain vendu avec permis de construire accepté et libre de tout constructeur.
Environ 120 m² pour cette belle villa de plain-pied avec piscine.
Terrain vendu viabilisé.
Accès à l'école du village à deux minutes.
Pour tous renseignements ou visite n'hésitez pas à m'appeler, je me ferais un plaisir de vous répondre ou de vous faire visiter si besoin.
Villecroze, petit village provençal, qui a su garder tout son charme à seulement 20min de Draguignan
Cette annonce référence 228840 vous est présentée par votre agent commercial BSK Immobilier PATRICE AUBERT (EI) immatriculé au RSAC de DRAGUIGNAN (83300) sous le numéro 42433151000018.
Prix du bien : 100 000,00 €
Les honoraires d'agence sont à la charge du vendeur.
Les informations sur les risques auxquels ce bien est exposé sont disponibles sur le site Géorisques : www.georisques.gouv.fr
986 m²
127 €
986 m²
Contact PATRICE AUBERT
Contacter gratuitement à l'aide du formulaire ci-dessous.