Terrain Constructible de 1800 m² - Un Cadre de Vie Idéal
Quimper 29000
0
Honoraires à la charge de l'acquéreur (Prix hors honoraires : 161320 euros).
Terrain Constructible de 1800 m² - Un Cadre de Vie Idéal Imaginez un terrain de 1800 m², baigné de verdure, exposé SUD-OUEST, où chaque projet peut prendre vie. Ce terrain constructible, situé dans un environnement verdoyant, est l'endroit idéal pour construire la maison de vos rêves. Peut également convenir pour un investisseur ou promoteur..
Ce terrain à bénéficié d'une étude géotechnique et hydraulique afin de connaître les possibles implantations du ou des maison, et la gestion des eaux pluviales.
Le terrain n'est pas viabilisé, mais les arrivées en eau et électricité sont à l'entrée du terrain.
L'assainissement sera individuel. Une étude de sol afin de définir le type de filière à été réalisée.
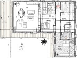
Un projet de maison de 145m² a été effectué avec plans et projection visuelle. Profitez de ce cadre naturel tout en étant à proximité de toutes les commodités. À seulement 5 minutes à pied, vous trouverez une boulangerie et des arrêts de bus pour des déplacements faciles. En voiture, vous serez à 5 minutes du centre ville, des écoles, de l'hôpital, des commerces et restaurants.
Contactez nous dès aujourd'hui pour plus d'informations et pour concrétiser votre projet.
Honoraires inclus de 6% TTC à la charge de l'acquéreur. Prix hors honoraires 161 320 . Les informations sur les risques auxquels ce bien est exposé sont disponibles sur le site Géorisques : georisques.gouv.fr.
1800 m²
95 €
1800 m²
6 %
Oui
Contact Ana AMADO
Contacter gratuitement à l'aide du formulaire ci-dessous.