Terrain constructible de 254m2 à vendre à GUER (56 380)
Guer 56380
0
Honoraires à la charge de l'acquéreur (Prix hors honoraires : 30258 euros).
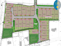
CHT IMMOBILIER vous propose de réaliser votre construction sur un terrain viabilisé de 254m2. Ce terrain se situe en lotissement, dans le centre ville de GUER, avec commerces, écoles et activités à proximité immédiate. Ce terrain est implanté au sein d'un lotissement de 26 lots, sur les hauteurs de GUER avec vue dégagée. Libre de constructeur, vous pourrez réaliser le projet qui vous convient. Découvrez également d'autres terrains entre 241m2 et 546m2. La commune de GUER est très dynamique, elle compte un peu moins de 7 000 habitants et accueille tous types de commerces (Boulangeries, Boucheries, Epicerie, Supermarché, Magasin de bricolage et de vêtements, Opticien...) un centre médical et deux pharmacies, et les écoles du primaire au lycée. Le milieu associatif est très développé, vous y trouverez à coup sûr votre activité en fonction de vos centres d'intérêts. Contactez vite CHT IMMOBILIER au 02 99 06 98 97 pour réserver votre terrain. Les informations sur les risques auxquels ce bien est exposé sont disponibles sur le site Géorisques : www.georisques.gouv.fr Vous avez un projet immobilier sur le secteur de Brocéliande ? Pour vendre, acheter ou louer une maison à Plélan le Grand, Guer, Beignon, Saint Malo de Beignon, Porcaro, Augan, Monteneuf, Concoret, Campénéac, Paimpont, Saint Péran, Iffendic, Monterfil, Montfort sur Meu, Saint Thurial, Bovel, Loutehel, Val d'Anast, Maxent, Treffendel, Saint Malon sur Mel, Baulon... contactez nous. Sept conseillers à votre service, trois vitrines à Plélan le grand, Saint Cyr Coëtquidan et Beignon et publication de nos annonces sur plus de 80 sites internet. Plus d'offres sur www.cht-immobilier.com
254 m²
131 €
254 m²
10.09 %
Oui
Contact BOULLOT Klemens
Contacter gratuitement à l'aide du formulaire ci-dessous.