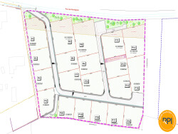
Votre agence immobilière de confiance, RUOB PROMOTION IMMOBILIÈRE (RPI), basée à Stiring-Wendel et représentée par Lucas BOUR, est fière de vous proposer à la vente différents terrains constructibles situées dans la commune prisée de Spicheren.
Ces terrains ont des superficies comprises entre 5,41 ares et 11,31 ares et se situent en lisière de forêt (Sonnenweg), à la frontière allemande.
Entièrement viabilisés, ces terrains offrent un cadre idéal pour concrétiser votre projet de construction dans les meilleures conditions, pour édifier la maison de vos rêves.
Contactez-moi rapidement pour organiser une visite !
Honoraires à la charge du vendeur. Les informations sur les risques auxquels ce bien est exposé sont disponibles sur le site Géorisques : georisques.gouv.fr. . Retrouvez plus d'informations sur notre site web : www.ruob.fr
541 m²
198 €
541 m²
Contact RUOB Promotion Immobilière
Contacter gratuitement à l'aide du formulaire ci-dessous.