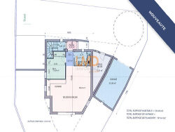
Dans secteur recherché avec proximité immédiate des commerces, gare et arrêt de bus; beau terrain de 428 m² avec permis accordé et purgé pour la construction d'un bâtiment R+1 constitué de 2 logements et espace de stationnement dont un garage et local à vélo. Au niveau des habitations prévues, en rez-de-jardin un appartement T2 de 58 m² environ et en étage un appartement T3 de 77 m² environ
Annonce publiée par Laurent Boulay (EI) votre agent commercial en immobilier LMDimmobilier à Marseille, 13007 immatriculé au RSAC de sous le n°534 918 511 . Consultez nos tarifs sur le site LMDimmobilier.
Les informations sur les risques auxquels ce bien est exposé sont disponibles sur le site Géorisques : www.georisques.gouv.fr.
428 m²
818 €
428 m²
Oui
Contact Maxihome
Contacter gratuitement à l'aide du formulaire ci-dessous.