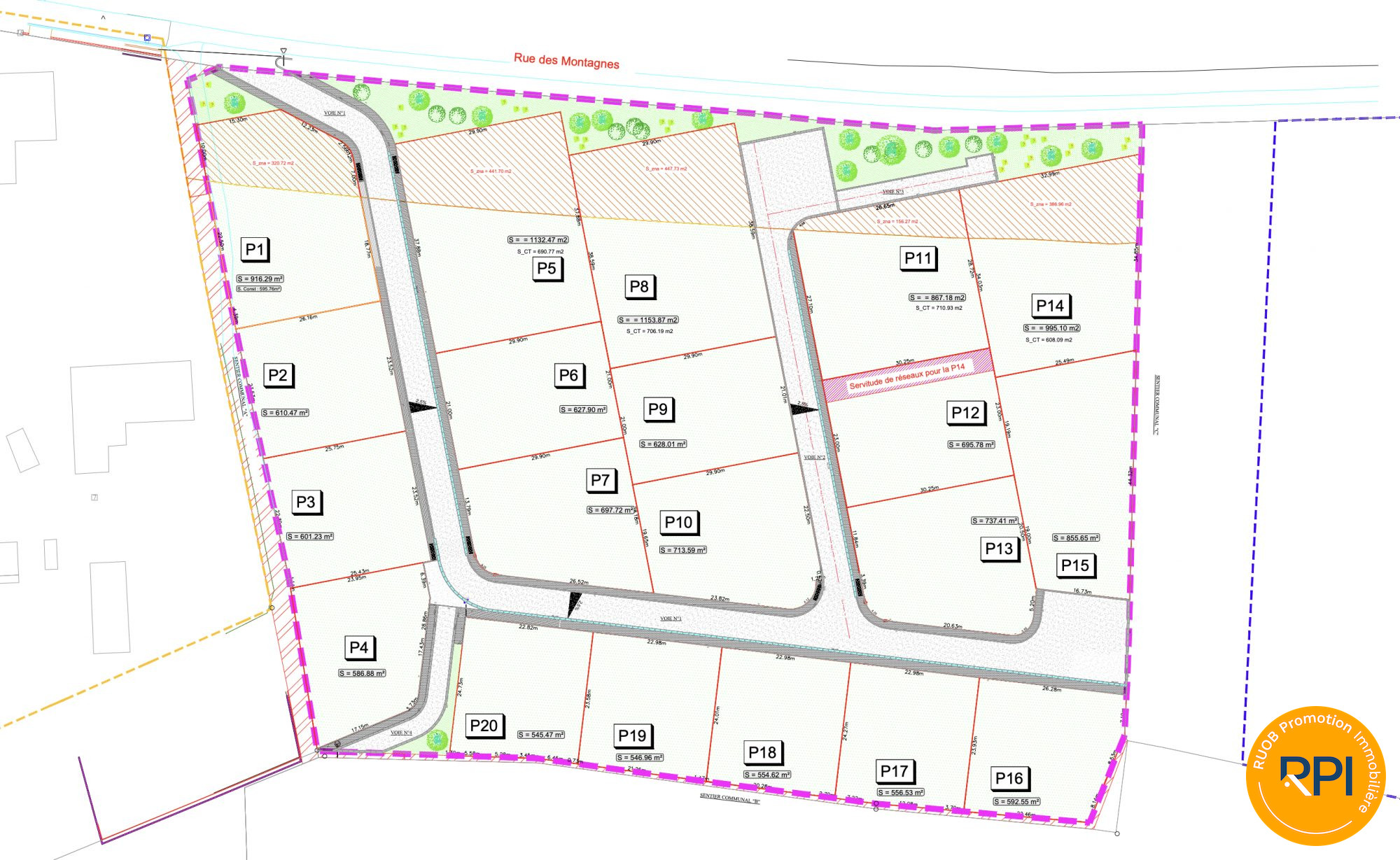
Terrain constructible de 715 m² idéalement situé en plein centre du village d'Ottange. Ce terrain offre une opportunité pour réaliser votre projet immobilier dans un village frontalier très attractif. Il bénéficie d'une localisation privilégiée, à proximité immédiate des commodités locales, des écoles et des services du village, tout en offrant un environnement agréable.
Une étude de sol a déjà été réalisée afin de pouvoir démarrer votre projet de construction en toute sérénité.
Le prix de vente est exprimé HONORAIRES AGENCE INCLUS (H.A.I : charge VENDEUR). Les informations sur les risques auxquels ce bien est exposé sont disponibles sur le site Géorisques : www.georisques.gouv.fr
Pour un RDV, une visite contacter le 07 82 01 52 57 (Agence : 03 82 82 35 69) ou le 671 260 273 Venez découvrir l'ensemble de nos offres sur notre site internet www.scbi.eu
Honoraires à la charge du vendeur. Les informations sur les risques auxquels ce bien est exposé sont disponibles sur le site Géorisques : georisques.gouv.fr.
715 m²
208 €
715 m²
20/01/2026
Contact BORBICONI IMMOBILIER
Contacter gratuitement à l'aide du formulaire ci-dessous.