Honoraires à la charge de l'acquéreur (Prix hors honoraires : 140000 euros).
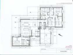
Votre agence Fontaine Immobilier vous propose sur Le Mans secteur Les Maillets terrain non viabilisé avec projet de construction validé et purgé de tout recours. Maison entièrement de plain pied (150m2) comprenant : Entrée, cuisine ouverte sur le séjour/salon, 5 chambres dont une suite parentale avec une salle d'eau et dressing, salle de bains, grand garage. Norme RT 2020. Le coût de l'énergie était évalué à 100 EUR par mois. . Système de lames permettant de contrôler le chauffage par le soleil via de larges baies vitrées. Assainissement autonome autorisé. Proche de toutes commodités. Les informations sur les risques auxquels ce bien est exposé sont disponibles sur le site Géorisques : www.georisques.gouv.fr
3252 m²
45 €
3252 m²
5.00 %
Oui
Contact FONTAINE Miguel
Contacter gratuitement à l'aide du formulaire ci-dessous.