Honoraires à la charge de l'acquéreur (Prix hors honoraires : 265000 euros).
EXCLUSIVITÉ
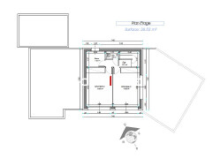
Montauroux (Var) - Terrain constructible avec permis accordé pour une villa contemporaine avec piscine de 170 m2 avec garage - 4 chambres - Beau terrain plat de 1350 m2 au calme absolu dans un quartier résidentiel sur les hauteurs du village. Accès facile.
Viabilités en bordure.
Dossier complet sur demande
Honoraires inclus de 3.77% TTC à la charge de l'acquéreur. Prix hors honoraires 265 000 . Les informations sur les risques auxquels ce bien est exposé sont disponibles sur le site Géorisques : georisques.gouv.fr.
1349 m²
204 €
1349 m²
3.77 %
Oui
Contact CALIXTE L'Immobilier 100% Exclusivités
Contacter gratuitement à l'aide du formulaire ci-dessous.