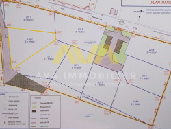
Situé dans un lotissement calme et agréable de 9 lots, ce terrain plat de 1 029 m2 (lot no2) offre un cadre idéal pour construire votre maison dans un environnement paisible. Les raccordements sont déjà en place : coffrets d'électricité, téléphone et regard d'eau. Assainissement individuel à prévoir. Vous bénéficiez d'un emplacement privilégié, à seulement 5 minutes de Navarrenx, en direction de Sauveterre-de-Béarn. Un terrain prêt à bâtir dans un cadre de vie recherché. À visiter rapidement ! Les informations sur les risques auxquels ce bien est exposé sont disponibles sur le site Géorisques : www.georisques.gouv.fr
1029 m²
25 €
1029 m²
Oui
Contact Ava Immobilier
Contacter gratuitement à l'aide du formulaire ci-dessous.