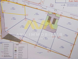
Situé dans un lotissement paisible de 9 lots, ce terrain plat de 1 091 m2 (lot no1) offre un environnement calme et agréable, idéal pour votre future maison. Les raccordements sont déjà en place : coffrets d'électricité, téléphone et regard d'eau. Assainissement individuel à prévoir. Profitez d'un emplacement stratégique, à 5 minutes de Navarrenx, direction Sauveterre-de-Béarn. Un terrain prêt à bâtir, dans un cadre de vie recherché. Contactez-nous pour en savoir plus ! Les informations sur les risques auxquels ce bien est exposé sont disponibles sur le site Géorisques : www.georisques.gouv.fr
1091 m²
25 €
1091 m²
Oui
Contact Ava Immobilier
Contacter gratuitement à l'aide du formulaire ci-dessous.