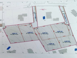
Situé à quelques minutes d'AGEN : sur la commune de ST PIERRE DE CLAIRAC, joli terrain spacieux de 1105m² constructible et viabilisé dans un petit lotissement de 6 lots.
Environnement très calme, chemin privé, piscinable, école, supermarché et commerces de proximité à 5 minutes.
Pour tous renseignements ou pour visiter ce terrain d'exception n'hésitez pas à me contacter.
Non soumis au DPE
Cette annonce référence 262865 vous est présentée par votre agent commercial BSK Immobilier LOIC DUPUY (EI) immatriculé au RSAC de AGEN (47000) sous le numéro 93429113900012.
Prix du bien : 75 000,00 €
Les honoraires d'agence sont à la charge du vendeur.
Les informations sur les risques auxquels ce bien est exposé sont disponibles sur le site Géorisques : www.georisques.gouv.fr
1105 m²
68 €
1105 m²
Contact LOIC DUPUY
Contacter gratuitement à l'aide du formulaire ci-dessous.