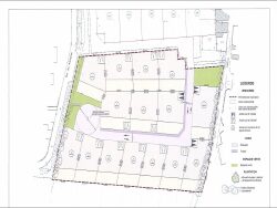
Dans le bourg, terrains en lotissement pour une superficie de 433 m2 à 582 m2.6 lots viabilisés, prix allant de 73.402,16 à 90.762,00
les honoraires de négociation sont à la charge du vendeur.
Descriptif des lots :
LOT 7 : superficie 506 m2 - prix 78.936,00
LOT 9 : superficie 525 m2 - prix 88.998,00
LOT 10 : superficie 433 m2 - prix 73.402,16
LOT 11 : superficie 433 m2 - prix 73.402,16
LOT 12 : superficie 433 m2 - prix 73.402,16
LOT 15 : superficie 507 m2 - prix 85.946,64 Les terrains sont libres de constructeur, l'étude vous propose en collaboration avec le constructeur ' Maisons Le Masson' deux projets.
Honoraires à la charge du vendeur. Les informations sur les risques auxquels ce bien est exposé sont disponibles sur le site Géorisques : georisques.gouv.fr.
433 m²
170 €
433 m²
Contact Marina PAUL
Contacter gratuitement à l'aide du formulaire ci-dessous.