DERNIER ÉTAGE VUES PANORAMIQUES TERRASSES PLEIN SUD VOLUMES EXCEPTIONNELS EMPLACEMENT PREMIUM
La résidence s'inscrit dans un environnement particulièrement qualitatif, alliant élégance architecturale et prestations haut de gamme. L'atmosphère y est résolument paisible, offrant un véritable havre de calme tout en restant au coeur d'un secteur vivant et recherché. La localisation est idéale : proche du centre de Bordeaux, au sein d'un quartier bien équipé avec de nombreux commerces et complexes à proximité, ainsi que des écoles et universités accessibles rapidement. Les quais, les parcs environnants et le tramway à quelques minutes renforcent encore l'attractivité de cette adresse, parfaitement connectée tout en préservant une vraie tranquillité de vie.
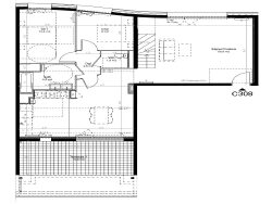
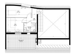
Situé au dernier étage, cet appartement d'exception développe une superficie de 115 m² et se distingue par une spectaculaire pièce de vie de 56 m², dont une partie bénéficie d'une double hauteur sous plafond offrant un volume majestueux et une luminosité remarquable. Cet espace s'ouvre sur une première terrasse exposée plein sud de 17 m², permettant de recevoir, déjeuner ou dîner en extérieur tout en profitant d'une vue panoramique imprenable sur Bordeaux. À ce niveau, l'espace nuit comprend deux chambres, avec WC indépendants et une salle de bain double vasque. À l'étage, deux chambres supplémentaires disposent chacune de leur salle d'eau avec WC et s'ouvrent sur une seconde terrasse de 17 m², aux vues totalement dégagées. Un bien rare, conjuguant dernier étage, volumes spectaculaires, extérieurs généreux et cadre de vie calme, pour une expérience résidentielle véritablement exclusive.
Une place de parking couverte et sécurisée complète ce bien en SUS.
- Frais de notaire REDUITS - Normes - Garanties - Exonération de Taxe Foncière - Très bientôt Disponible - ...
Visuel non contractuel suggestions d'aménagement
DERNIER ÉTAGE VUES PANORAMIQUES TERRASSES PLEIN SUD VOLUMES EXCEPTIONNELS EMPLACEMENT PREMIUM
Honoraires à la charge du vendeur. Dans une copropriété de 126 lots. Aucune procédure n'est en cours. DPE en cours. Les informations sur les risques auxquels ce bien est exposé sont disponibles sur le site Géorisques : georisques.gouv.fr.