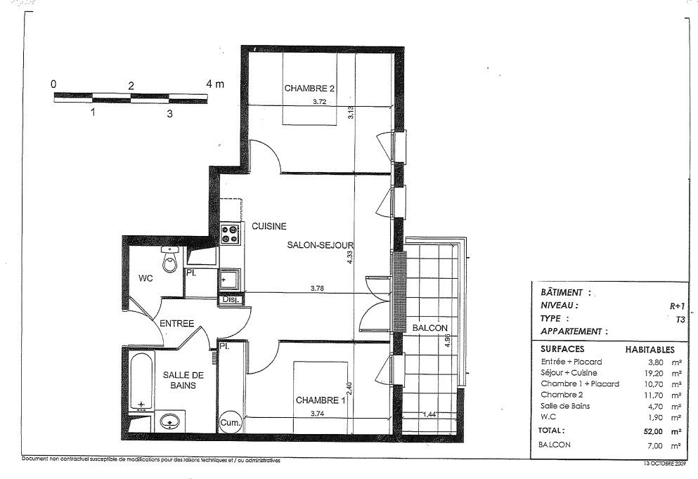
Idéal première achat. venez découvrir cet appartement T3 de 54,50 m² situé au 3ème étage (R+3), offrant un agencement optimisé et un extérieur agréable.LE DESCRIPTIF DU BIEN
Ce bien se compose d'une entrée avec placard intégré desservant : Une pièce de vie avec cuisine ouverte de 22,45 m², lumineux, donnant un accès direct à un balcon de 6m2. Le coin nuit : Il dessert deux chambres bien proportionnées :Une première chambre de 11,91 m². Une seconde chambre de 9,33 m² équipée d'un placard.
Et une salle de bains avec baignoire (4,54 m²) et des WC séparés pour plus de confort. LES ATOUTSAgencement sans perte d'espace : Le plan sépare bien la zone jour de la zone nuit. Rangements : Placards prévus dans l'entrée, le dégagement et la chambre 2. Localisation : Proximité immédiate des transports et des commodités de la zone de Bellefontaine / Basso Cambo.
Honoraires à la charge du vendeur. Dans une copropriété de 47 lots. Aucune procédure n'est en cours. Classe énergie C, Classe climat A Montant moyen estimé des dépenses annuelles d'énergie pour un usage standard, établi à partir des prix de l'énergie de l'année 2021 : entre 491.00 et 665.00 . Les informations sur les risques auxquels ce bien est exposé sont disponibles sur le site Géorisques : georisques.gouv.fr.
54.5 m²
1 991 €
6 m²
22 m²
3
2
1
1
3 sur 4
2011
Sud
1 (6 m²)
Oui
1
Oui (47 lots)
Consommations énergétiques
Logement économe
116
Logement énergivore (kWhEP/m2/an)
Émissions de gaz à effet de serre
Faible émission de GES
3
Forte émission de GES(kgeqCO2/m2/an)
Contact C2i SUD OUEST
Contacter gratuitement à l'aide du formulaire ci-dessous.