TOURS - PROCHE PLACE COTY - Appartement T3 de 72 m²
Tours 37100
0
Honoraires à la charge de l'acquéreur et du vendeur (Prix hors honoraires : 0 euros).
Les charges de location sont prévisionnelles mensuelles avec régularisation annuelle.
La part des honoraires pour la réalisation de létat des lieux de ce bien est de 170 euros.
TOURS - PROCHE PLACE COTY - Appartement T3 de 73 m²
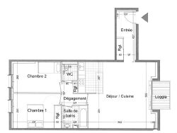
Appartement T3 de 73 m², au 1er étage d'une résidence récente et sécurisée,
L'appartement se compose d'une entrée avec placard, dégagement, pièce de vie de 34 m² dont une cuisine aménagée et semi-équipée (plaque de cuisson, hotte) ouverte sur le séjour, 2 chambres, salle de bains, wc séparé.
Balcon. 2 places de parking en souterrain.
Proche tous commerces et transports.
Loyer charges comprises : 795 dont une provision pour charges de 50 (entretien et électricité des parties communes, maintenance de l'ascenseur). Dépôt de garantie : 745 . Honoraires charge locataire : 745 TTC dont 170 pour l'état des lieux.
L'appartement est soumis à des plafonds de revenus, merci de nous adresser au préalable vos 2 derniers avis d'imposition.
Honoraires de 745 TTC à la charge du locataire comprenant 170 TTC pour l'état des lieux. Loyer de base 745 /mois. Provision sur charges 50 /mois, régularisation annuelle. Dépôt de garantie 745 . Classe énergie B, Classe climat B Montant estimé des dépenses annuelles d'énergie pour un usage standard : entre 480.00 et 690.00 sur les années 2021, 2022 et 2023 (abonnements compris). Les informations sur les risques auxquels ce bien est exposé sont disponibles sur le site Géorisques : georisques.gouv.fr.