Appartement T2 Neuf avec Vue sur Parc - Beau Standing
Découvrez ce magnifique appartement T2 neuf de 44,67 m², situé au 2ème étage d'une résidence de standing de 7 étages. Ce bien, construit en 2021, allie modernité et confort, avec une isolation extérieure et des parties communes impeccables.
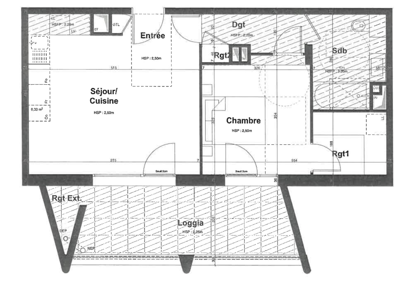
Imaginez-vous dans un séjour lumineux de 21 m², baigné de lumière naturelle grâce aux ouvertures en bois et aux portes à double vitrage. La cuisine indépendante, aménagée avec soin, est un véritable espace de vie pratique et élégant. Profitez d'une chambre spacieuse et d'une salle d'eau moderne, le tout neuf et conforme aux normes PMR.
L'appartement dispose également d'une belle Loggia de presque 13 m², parfait pour des moments de détente avec une vue imprenable sur le parc. Un stationnement en sous-sol intérieur avec borne de recharge électrique est inclus pour votre confort. Porte d'entrée tri bloc et visiophone NFC pour plus de tranquillité
Situé dans un quartier dynamique et en plein essor, vous trouverez plusieurs restaurants et parcs ainsi qu'une école à seulement 2 minutes à pied. Les commodités quotidiennes, telles que les commerces et les médecins, sont accessibles en 15 minutes à pied.
Ne manquez pas cette opportunité de vivre dans un cadre exceptionnel, alliant tranquillité et proximité des services essentiels.
Honoraires à la charge du vendeur. Dans une copropriété de 230 lots. Aucune procédure n'est en cours. Classe énergie B, Classe climat A Montant moyen estimé des dépenses annuelles d'énergie pour un usage standard, établi à partir des prix de l'énergie de l'année 2021 : entre 288.00 et 390.00 . Les informations sur les risques auxquels ce bien est exposé sont disponibles sur le site Géorisques : georisques.gouv.fr.