Très beau T4/T5 de 110m² refait récemment - Rue Doyen Georges
Lyon 69009
0
Honoraires à la charge du vendeur.
Quatuor vous présente ce très bel appartement entièrement refait de type T4/T5 de 110m², situé rue du Doyen Georges Chapas, au dernier étage d'une copropriété très bien entretenue et calme.
En exclusivité chez Quatuor.
Cet appartement entièrement refait en 2017 comprend :
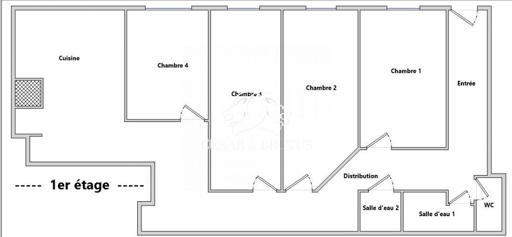
- Une agréable pièce de vie de 34m² exposée plein Ouest baignée de lumière avec parquet massif. - Une cuisine séparée de 10m² entièrement aménagée et équipée récemment. - Deux chambres de 10,3m² et une chambre de 11m² exposées plein Est, donnant sur une loggia de 11m². - Une chambre parentale de 13,5m² exposée plein Ouest et donnant sur une loggia de 9m². - Une salle d'eau avec douche entièrement refaite récemment. - Une salle de bain avec baignoire refaite également - Un WC séparé.
L'appartement dispose de nombreux rangements grâce aux placards intégrés dans les couloirs et à l'entrée.
Les deux loggias de 10m² chacune, de chaque côté de l'appartement sont un vrai plus. Une cave complète ce bien. Un grand parking collectif est disponible dans la copropriété.
Les atouts :
- Excellent état (refait récemment). - Très lumineux. - Calme et sans vis-à-vis - Traversant - Loggias - Stationnement collectif - Nombreux rangements
Charges comprenant eau chaude, eau froide, chauffage, entretiens des parties communes intérieurs et extérieurs, ascenseur et poubelles. Chauffage Collectif.
Concernant l'immeuble :
Copropriété des années 1960. Majorité de propriétaire occupants. Copropriété très paisible et plaisante au quotidien. Local à vélos sécurisé.
Concernant la localisation :
Situé entre le Stade de la Duchère et Champagne-au-Mont-d'Or, l'appartement est au coeur d'un secteur en pleine évolution très calme et familial. A moins de 5 minutes en bus de la Gare de Vaise, vous pourrez rejoindre tous les secteurs de Lyon très facilement, y compris Bellecour en 20 minutes, ou la gare de la Part Dieu en moins de 30 minutes. Beaucoup d'écoles (incluant l'école Les Dahlias, ou le lycée La Martinière) sont à quelques minutes de l'appartement. Vous retrouverez de nombreux commerces de proximité sur le plateau, à 5 minutes à pieds. Au pied de la copropriété plusieurs bus C14, C26, 21, 61, 89 qui vous mèneront vers gare de Vaise en 5 minutes.
Honoraires à la charge du vendeur. Dans une copropriété de 74 lots. Aucune procédure n'est en cours. Classe énergie D, Classe climat C Montant moyen estimé des dépenses annuelles d'énergie pour un usage standard, établi à partir des prix de l'énergie de l'année 2024 : entre 1660.00 et 2300.00 . Les informations sur les risques auxquels ce bien est exposé sont disponibles sur le site Géorisques : georisques.gouv.fr.
111 m²
2 603 €
20 m²
30 m²
5
3
2
1 (séparé)
4 sur 4
2 (20 m²)
Oui
Oui
1
1
2
Oui
Oui (74 lots)
Consommations énergétiques
Logement économe
226
Logement énergivore (kWhEP/m2/an)
Émissions de gaz à effet de serre
Faible émission de GES
19
Forte émission de GES(kgeqCO2/m2/an)
Contact Quentin LANGUILLE
Contacter gratuitement à l'aide du formulaire ci-dessous.