Très beau terrain 709m2 - libre de construction à JETTINGEN
Jettingen 68130
0
Honoraires à la charge de l'acquéreur (Prix hors honoraires : 85000 euros).
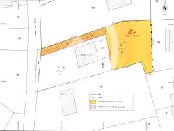
A moins de 30 minutes des frontières suisse et allemande ainsi que de Mulhouse, situé au centre de la commune de Jettingen, vous serez charmé par ce terrain de 709m2 libre de constructeur au calme grâce à sa distance par rapport à la route desservi par un chemin d'accès. A quelques kilomètres se situe également la commune de Bartenheim, où vous trouverez des commerces de proximité et une gare. Le terrain est vendu en l'état et non viabilisé Nous travaillons avec des constructeurs de confiance pour vous accompagner dans toutes les étapes de votre projet immobilier, si vous en avez le besoin. Afin de pouvoir vous y projeter et y visualiser votre future maison, contactez-nous et laissez-vous surprendre! Les informations sur les risques auxquels ce bien est exposé sont disponibles sur le site Géorisques : www.georisques.gouv.fr
709 m²
128 €
709 m²
7.06 %
Est
Oui
Contact La Clé Immobilière
Contacter gratuitement à l'aide du formulaire ci-dessous.