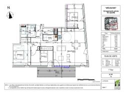
Votre agence CASA IMMO, agence immobilière à Caen vous propose à la vente ce bel appartement 4P de 85 m2 alliant confort, luminosité et praticité. Cet appartement se situe au coeur d'IFS, dans une résidence sécurisée et intimiste de seulement 12 logements,
Ses atouts : Un grand balcons exposé plein SUD, idéal pour vos moments de détente Un séjour-cuisine spacieux et lumineux ouvrant sur le balcon et bénéficiant d'une double exposition 3 Belles chambres Un cellier pratique et des WC séparés Pour votre confort, ce bien est vendu avec 2 places de parking extérieures.
Une opportunité rare à saisir dans un quartier calme et recherché d'IFS, à deux pas des commodités.
Contactez dès maintenant votre agence CASA IMMO Caen pour organiser une présentation !
Honoraires à la charge du vendeur. Dans une copropriété de 12 lots. Aucune procédure n'est en cours. Non soumis au DPE. Les informations sur les risques auxquels ce bien est exposé sont disponibles sur le site Géorisques : georisques.gouv.fr.
86 m²
3 616 €
12.00 m²
33.00 m²
4
3
1
1 (séparé)
1
2025
Sud
2 (12.00 m²)
Oui
2
Oui (12 lots)
Contact CASA IMMO
Contacter gratuitement à l'aide du formulaire ci-dessous.