L'agence 'MON BIEN A LA MER', spécialiste de l'immobilier neuf sur les côtes Bretonnes, vous présente :
Emplacement exceptionnel : Port de Dahouët : Résidence de grand standing de 33 lots. Matériaux nobles, surfaces généreuses. Frais de notaire réduits. Livrée et visitable.
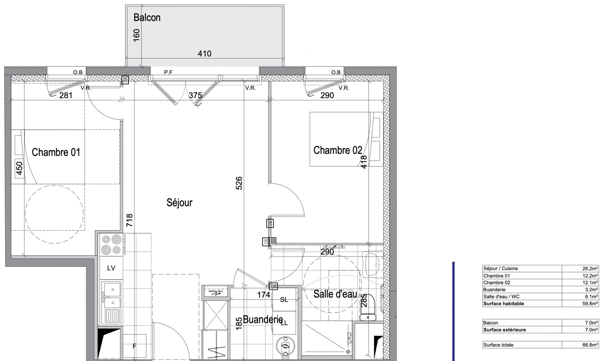
Grand T2bis au rez de chaussée de 56m2 avec jardin/terrasse 16m2 comprenant : - Grand séjour/entrée/cuisine 34m2 - chambre + dressing 15,8m2, salle d'eau douche à l'italienne, meuble vasque, sèche serviette, wc suspendu. - kitchenette (meubles haut/bas, plaques cuisson/hotte) Volets roulants électriques, parquet stratifié, menuiseries alu coulissantes.
Parking sous sol inclus.
Nous Consulter
Honoraires à la charge du vendeur. Classe énergie B, Classe climat A Montant estimé des dépenses annuelles d'énergie pour un usage standard : entre 400.00 et 580.00 sur les années 2021, 2022 et 2023 (abonnements compris). Les informations sur les risques auxquels ce bien est exposé sont disponibles sur le site Géorisques : georisques.gouv.fr.
Votre conseiller MON BIEN A LA MER : Gérant - .fr MON BIEN A LA MER Carte T CPI 2201 2018 000 025 040 RCP ACM IARD B1 7025278
56.15 m²
5 183 €
34 m²
2
1
1
1
1
Consommations énergétiques
Logement économe
71
Logement énergivore (kWhEP/m2/an)
Émissions de gaz à effet de serre
Faible émission de GES
2
Forte émission de GES(kgeqCO2/m2/an)
Contact mon bien à la mer
Contacter gratuitement à l'aide du formulaire ci-dessous.