L'agence 'MON BIEN A LA MER', spécialiste de l'immobilier neuf sur les côtes Bretonnes, vous présente :
Superbe emplacement pour ce projet de construction VEFA (fin 2026). Sur le Port de PORNIC, à 5 min à pied des du Port et des Commerces. 5 min en vélo de la Plage. Résidence sécurisée dans un cadre verdoyant, ascenseur, Parquet stratifié, carrelage PORCELANOSA, wc suspendus, chauffage électrique, places de parking en sous sol pouvant être équipées de bornes électriques,.
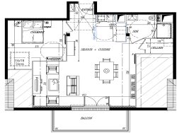
Superbe T2 au 3è et dernier étage exposé sud ouest comprenant : - Surface carrez 58,38m2 + surface utile - séjour/cuisine/entrée/cellier 41,5m2, - chambre de 12m2, - salle d'eau avec douche italienne, meuble vasque, sèche serviette, wc suspendus, - terrasse 7,36m2 - parking inclus.
Nous Consulter.
Honoraires à la charge du vendeur. Non soumis au DPE. Les informations sur les risques auxquels ce bien est exposé sont disponibles sur le site Géorisques : georisques.gouv.fr.
Votre conseiller MON BIEN A LA MER : Gérant - .fr MON BIEN A LA MER Carte T CPI 2201 2018 000 025 040 RCP ACM IARD B1 7025278
58.38 m²
5 618 €
37 m²
2
1
1
1
3 sur 3
Oui
1
1
Contact mon bien à la mer
Contacter gratuitement à l'aide du formulaire ci-dessous.