L'agence 'MON BIEN A LA MER', spécialiste de l'immobilier neuf sur les côtes Bretonnes, vous présente :
Emplacement exceptionnel : Port de Dahouët : Résidence de grand standing de 33 lots. Matériaux nobles, surfaces généreuses. Frais de notaire réduits. Livrée et visitable.
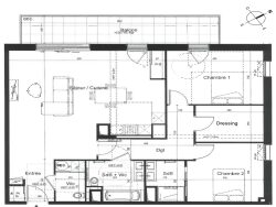
Très grand T3bis de 95m2 exposé Ouest/soleil couchant, vue Port de DAHOUET, 1er étage, comprenant : - Séjour/cuisine 39m2, wc séparé - 2 chambres 13,57-11,33, dressing 6,45m2, salle d'eau, salle de bains avec 2è wc, - Terrasse 14m2 Parquet contrecollé, carrelage/faïence standing, wc suspendus, menuiseries alu/volets roulants électriques. Double parking sous sol inclus.
Nous Consulter
Honoraires à la charge du vendeur. Classe énergie A, Classe climat A Montant estimé des dépenses annuelles d'énergie pour un usage standard : entre 530.00 et 760.00 sur les années 2021, 2022 et 2023 (abonnements compris). Les informations sur les risques auxquels ce bien est exposé sont disponibles sur le site Géorisques : georisques.gouv.fr.
Votre conseiller MON BIEN A LA MER : Gérant - .fr MON BIEN A LA MER Carte T CPI 2201 2018 000 025 040 RCP ACM IARD B1 7025278
95 m²
4 621 €
39 m²
3
2
1
1
2 (séparés)
1 sur 3
Oui
2
1
Consommations énergétiques
Logement économe
64
Logement énergivore (kWhEP/m2/an)
Émissions de gaz à effet de serre
Faible émission de GES
2
Forte émission de GES(kgeqCO2/m2/an)
Contact mon bien à la mer
Contacter gratuitement à l'aide du formulaire ci-dessous.