TRES RARE : plein front de mer, beau T4 avec jardin et terrasse
Châtelaillon-Plage 17340
0
Honoraires à la charge du vendeur.
L'agence 'MON BIEN A LA MER', spécialiste de l'immobilier neuf en Bord de Mer, sélectionne auprès des promoteurs les meilleures opérations aux mêmes prix, sans commission d'agence. Bénéficiez de notre expertise indépendante, et de nos services (aide aux plans, maquette, drone, visite virtuelles). Nous vous présentons ce bien :
TRES RARE : Plein FRONT DE MER, exposé sud-ouest, face à l'Océan et au soleil couchant.
Petite résidence neuve de 9 lots seulement, reprenant l'architecture locale. Ascenseur, Pompe à chaleur, prestations de standing. Livraison début 2028.
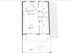
Appartement T4 au rez de chaussée : - Front de mer : Séjour 34m2 avec cellier, suite parentale 17,85m2 avec salle d'eau attenante - Côté cour : deux chambres 10m2, 2è salle d'eau, dégagement, wcs suspendus séparés - Jardin 41m2 et terrasse 16m2 front de mer - Deux parkings intérieurs inclus.
Frais de notaire réduits.
Nous Consulter.
Honoraires à la charge du vendeur. Non soumis au DPE. Les informations sur les risques auxquels ce bien est exposé sont disponibles sur le site Géorisques : georisques.gouv.fr.
Votre conseiller MON BIEN A LA MER : Gérant - .fr MON BIEN A LA MER Carte T CPI 2201 2018 000 025 040 RCP ACM IARD B1 7025278
88.65 m²
8 617 €
35 m²
4
3
2
1 (séparé)
Oui
2
1
Oui
Contact mon bien à la mer
Contacter gratuitement à l'aide du formulaire ci-dessous.