Très rare : T5 vue mer à deux pas de la plage de M. HULOT
Saint-Nazaire 44600
0
Honoraires à la charge du vendeur.
L'agence 'MON BIEN A LA MER', spécialiste de l'immobilier neuf bord de mer, vous présente :
Rare : Coeur de ville SAINT MARC SUR MER, 2 min à pied de la plage de M. HULOT : Construction d'une petite résidence de 9 logements. Livraison fin 2027. Frais de notaire réduits.
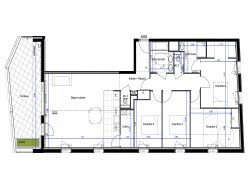
Dernier étage avec ascenseur et vue mer pour ce spacieux T5 de 118m2 comprenant : - Séjour triple expo Est-Sud-Ouest de 40m2 - une suite parentale de 16m2 avec salle d'eau attenante et dressing - 3 chambres 13-11-10m2 - salle de bains, cellier, deux wcs séparés, placards Une belle terrasse de 23m2 exposée sud ouest. Deux parkings inclus.
Les plans intérieurs sont personnalisables.
Nous consulter.
Honoraires à la charge du vendeur. Dans une copropriété de 22 lots. Aucune procédure n'est en cours. Non soumis au DPE. Les informations sur les risques auxquels ce bien est exposé sont disponibles sur le site Géorisques : georisques.gouv.fr.
Votre conseiller MON BIEN A LA MER : Gérant - .fr MON BIEN A LA MER Carte T CPI 2201 2018 000 025 040 RCP ACM IARD B1 7025278
118.55 m²
5 728 €
40 m²
5
4
1
1
2 (séparés)
2 sur 2
Oui
1
Oui (22 lots)
Contact mon bien à la mer
Contacter gratuitement à l'aide du formulaire ci-dessous.