À Douarnenez, domaine privé avec vue mer Un havre de paix :
Sur les hauteurs de TREBOUL (Douarnenez), à seulement 5 minutes à pied de la splendide plage des Sables Blancs, découvrez un domaine confidentiel de 2,5 hectares, lové dans un écrin de verdure face à l'océan. Une petite copropriété d'une vingtaine de maisons et appartements.
Les atouts du domaine : Vue mer imprenable depuis de nombreuses unités, Domaine privé au charme discret, Proximité immédiate du littoral, des sentiers côtiers et des commodités, Un environnement naturel et paisible, propice au repos ou à la contemplation,
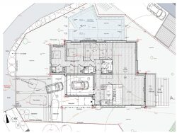
En fond de résidence, calme absolu, un terrain de 1192m2. Permis de construire purgé pour 149m2 utiles. Libre de constructeur.
Possibilité de vous présenter le projet en visio/partage d'écran ou en présentiel sur Rendez Vous.
Honoraires à la charge du vendeur. Les informations sur les risques auxquels ce bien est exposé sont disponibles sur le site Géorisques : georisques.gouv.fr.
Votre conseiller MON BIEN A LA MER : Gérant - .fr MON BIEN A LA MER Carte T CPI 2201 2018 000 025 040 RCP ACM IARD B1 7025278
1192 m²
336 €
1192 m²
Oui
Consommations énergétiques
Logement économe
289
Logement énergivore (kWhEP/m2/an)
Émissions de gaz à effet de serre
Faible émission de GES
9
Forte émission de GES(kgeqCO2/m2/an)
Contact mon bien à la mer
Contacter gratuitement à l'aide du formulaire ci-dessous.