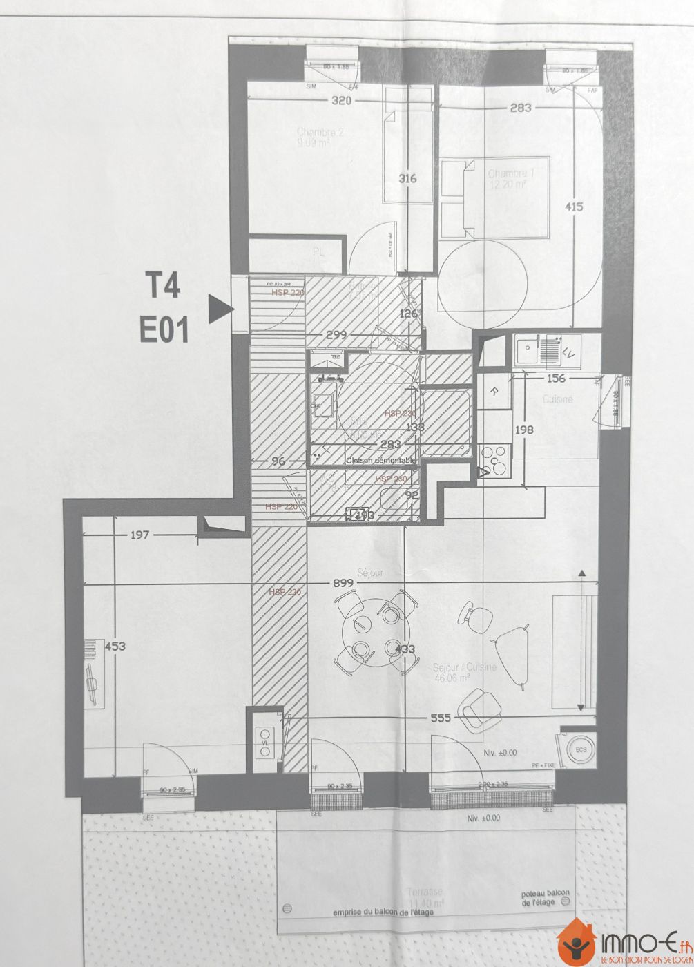
Sous compromis : Bailly-Romainvilliers Appartement Triplex Spacieux et Lumineux Terrasse 4 Chambres Box Fermé Environnement Résidentiel Privilégié Au coeur du secteur recherché de Bailly-Romainvilliers, au sein d'une résidence calme, bien entretenue et idéalement située, venez découvrir ce superbe appartement triplex offrant de beaux volumes, une luminosité optimale et un confort de vie rare sur le marché. Construit en 1998 et présentant un excellent état général, ce bien développe 87 m² Loi Carrez (96,7 m² au sol), conçus avec soin pour répondre pleinement aux attentes d'une vie familiale moderne. Situé au 1er étage d'une copropriété sans ascenseur, il bénéficie d'une exposition agréable et d'un environnement résidentiel très prisé, à proximité immédiate des commodités. Un agencement soigné et fonctionnel : Niveau principal : un espace de vie convivial et ouvert avec de nombreux rangements. Dès l'entrée, un hall de 4 m² équipé d'un placard de rangement offre une première impression d'ordre et de fonctionnalité. Il dessert un séjour lumineux de plus de 23 m², véritable coeur du logement, qui s'ouvre sur une belle terrasse de 19 m² sans vis-à-vis, idéale pour les repas en extérieur, la détente ou les moments conviviaux en famille. La cuisine semi-ouverte de 9 m², entièrement aménagée et équipée, permet une parfaite circulation entre les espaces et renforce la convivialité du lieu. Un WC indépendant complète ce niveau. Un espace nuit réparti intelligemment sur deux niveaux : Premier étage : un étage dédié aux enfants ou aux invités. Trois chambres allant de 8 à 11 m², dont deux dotées de placards intégrés, pensées pour optimiser l'espace. Une salle de bain, fonctionnelle et facile à vivre. Cet étage forme un véritable espace nuit indépendant, garantissant tranquillité et organisation. Deuxième étage : une suite privative On retrouve au dernier niveau une chambre mansardée de 17 m² au sol et 10 m² carrez, bénéficiant :de sa propre salle d'eau et d'un WC privatif, d'un volume charmant avec poutres apparentes, parfait pour une suite parentale, un bureau ou un espace polyvalent. Prestations complémentaires : Box fermé. Chauffage individuel électrique. Fenêtres en double vitrage assurant une isolation optimale. Fibre optique dans la résidence. Charges maîtrisées : 100 /mois DPE : D Localisation idéale et cadre de vie privilégié. Cet appartement bénéficie d'un emplacement stratégique au sein d'un secteur calme, verdoyant et recherché : Commerces de proximité, écoles primaire et collège accessibles à pied. Transports en commun desservant la gare RER Val d'Europe Accès rapides aux axes A4 et N36 Aéroport Paris-Charles-de-Gaulle à seulement 30 minutes Nombreux services de santé à proximité (médecins, pharmacies, spécialistes) Un cadre de vie équilibré, mêlant confort, sérénité et facilités du quotidien. Un bien rare, lumineux et parfaitement entretenu, offrant un confort de vie remarquable dans un cadre recherché. Idéal pour une famille souhaitant allier qualité de vie, espace et proximité des services. Visites sur rendez-vous 7/7 jours.
Dans une copropriété de 301 lots. Quote-part moyenne du budget prévisionnel 1 200 /an. Aucune procédure n'est en cours. Classe énergie D, Classe climat B Montant moyen estimé des dépenses annuelles d'énergie pour un usage standard, établi à partir des prix de l'énergie de l'année 2021 : entre 1220.00 et 1660.00 . Les informations sur les risques auxquels ce bien est exposé sont disponibles sur le s...
87.04 m²
4 021 €
23 m²
5
4
1
1
2
12/12/2025
100.00 € / mois
1998
1
Oui (301 lots)
Consommations énergétiques
Logement économe
225
Logement énergivore (kWhEP/m2/an)
Émissions de gaz à effet de serre
Faible émission de GES
7
Forte émission de GES(kgeqCO2/m2/an)
Contact Stéphanie Mouradian
Contacter gratuitement à l'aide du formulaire ci-dessous.