Triplex T4 de 84.80 m2hab. avec jardin privatif à Chaponost
Chaponost 69630
0
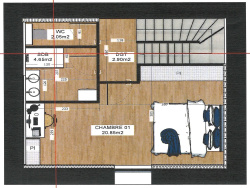
Découvrez cette superbe MAISON DE VILLAGE T4 en triplex de 84,80 m2 hab (en cours de rénovation), idéalement situé au rez-de-jardin de la résidence 'Le Dôme Celeste' en plein centre de Chaponost. L'entrée s'ouvre sur un espace de vie de 29 m2 env. en parquet, comprenant une cuisine, partiellement ouverte sur le séjour/salle à manger donnant accès à un jardinet privatif clos avec portillon. Un WC complète ce niveau. Au premier étage, vous trouverez un dégagement desservant une grande chambre de 21 m2 en parquet, un WC indépendant et une salle d'eau moderne avec meuble double vasque et miroir éclairé. Le deuxième et dernier niveau propose un dégagement , ainsi que deux chambres en parquet de 13 et 14 m2, toutes deux équipées de velux, dont l'une dispose également d'un fenestron. Deux places de parking privatives viennent compléter ce bien rare. VMC, double vitrage, prestations de qualité. Une opportunité à saisir au coeur de Chaponost !
Maison de village
84.8 m²
4 599 €
4
3
1
2
19/03/2026
1950
Oui
2
Oui
Contact Gina Immobilier
Contacter gratuitement à l'aide du formulaire ci-dessous.