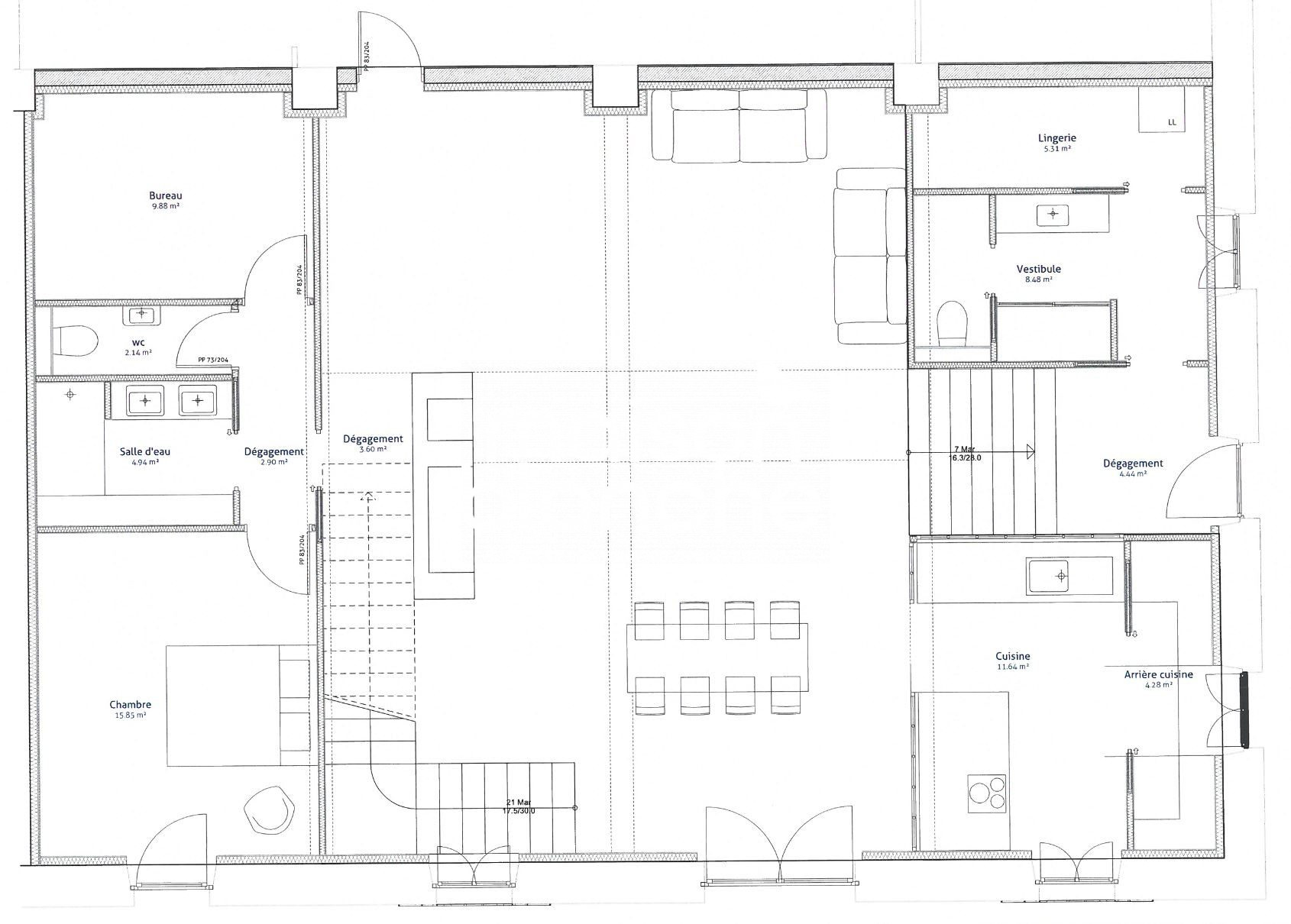
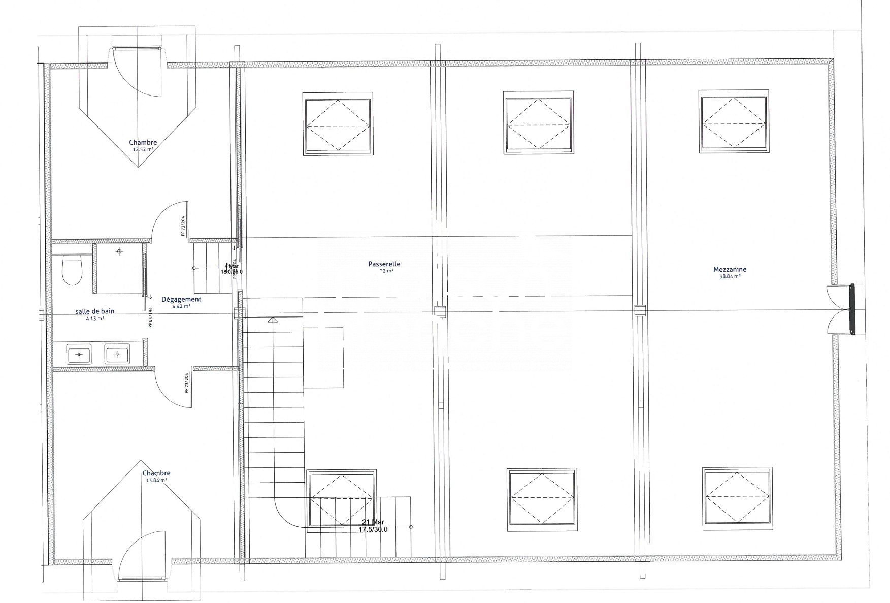
Niché au coeur du village labellisé « Petite Cité de Caractère » de Savennières, véritable joyau viticole de l'Anjou, cet ancien chai réhabilité en lofts se distingue par son caractère unique. Déployé sur deux niveaux, il offre des espaces de vie atypiques d'environ 185 m², idéaux pour les amateurs d'architecture contemporaine. Le tout s'inscrit dans un écrin verdoyant de 525 m² avec jardin. Immaculé dans un contraste élégant de blanc et de noir, ce lieu hors du commun séduit par ses volumes généreux, baignés de lumière et totalement modulables selon les envies et le mode de vie de ses futurs occupants. Dès l'entrée, l'espace s'ouvre sur un vaste hall avec dressing, toilettes et lingerie-chaufferie. Puis vient le coeur du loft : une pièce de vie époustouflante de plus de 75 m², où l'ancienne vocation du chai se devine encore à travers les lignes et la structure du bâtiment. Une cuisine indépendante, à aménager selon vos inspirations, se distingue par sa verrière en verre et métal, apportant un jeu subtil de transparence et de profondeur en lien avec l'espace principal. Sur ce même niveau, une suite parentale indépendante profite d'un accès direct à la terrasse et au jardin. Son espace nuit s'accompagne d'une salle d'eau élégante, équipée d'un double vasque, d'une douche à l'italienne et de toilettes privatives, garantissant un confort absolu. Une pièce attenante pourra être aménagée en bureau ou en dressing, selon les besoins. L'accès à l'étage s'effectue par un escalier à ossature métallique et marches en bois, qui s'intègre parfaitement dans le design industriel du lieu. Une passerelle aérienne, véritable signature architecturale, traverse l'espace et dessert deux chambres situées aux extrémités, mettant en valeur la charpente d'origine du chai. L'une des chambres bénéficie d'un dégagement avec une salle d'eau supplémentaire, équipée d'un double vasque, d'une douche à l'italienne et de toilettes. Chaque chambre est connectée à un espace polyvalent, pouvant faire office de bureau, salle de jeux ou chambre d'appoint, offrant ainsi une flexibilité maximale selon les besoins des futurs résidents. Ce bien d'exception comprend deux places de parking privatisées. Il se situe à seulement 8 minutes à pied de la gare TER de Savennières et à 9 minutes de la gare TGV d'Angers, permettant de rejoindre Paris ou Nantes en toute simplicité. A quelques pas des commerces du coeur de bourg et de son marché dominical, cette propriété bénéficie également d'un accès rapide à la métropole angevine, accessible en 22 minutes par la route. Classe Énergie : A / Classe Climat : A Montant moyen estimé des dépenses annuelles d'énergie pour un usage Standard, établi à partir des prix de l'énergie de l'année 2023 : entre 760 euros et 1110 euros par an. Contact: Philippe 06 07 60 57 50 E.I. Agent commercial 349 740 936 RSAC Angers Les honoraires sont à la charge du vendeur. Les informations sur les risques auxquels ce bien est exposé sont disponibles sur le site Géorisques : www.georisques.gouv.fr