T2 D'EXCEPTION EN DERNIER ÉTAGE VUE DÉGAGÉE AU COEUR DE BLANQUEFORT
Situé dans l'un des secteurs les plus recherchés de Blanquefort, à seulement quelques pas de la mairie, des commerces, des écoles et des transports, cet immeuble à taille humaine séduit par son environnement calme et résidentiel. Son emplacement privilégié permet de profiter d'un quotidien facile tout en conservant une véritable qualité de vie.
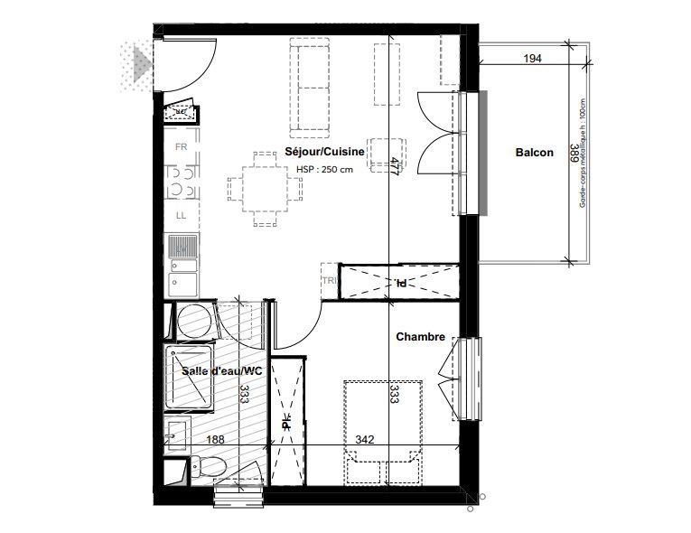
Découvrez ce superbe T2 de 43 m² situé au dernier étage d'une petite copropriété intimiste. L'appartement bénéficie d'une vue totalement dégagée, sans aucun vis-à-vis, offrant une sensation d'espace et de liberté rare en coeur de ville. Baigné de lumière grâce à sa position dominante et à son excellente exposition, il propose une atmosphère chaleureuse et apaisante. La grande pièce de vie, lumineuse et agréable à vivre, accueille confortablement un espace salon et une cuisine ouverte, idéale pour recevoir. Elle constitue le coeur de l'appartement, avec une belle continuité visuelle vers l'extérieur. La chambre, bien proportionnée, offre un véritable espace nuit au calme, tandis que la salle d'eau moderne complète l'ensemble avec fonctionnalité et élégance.
Deux places de stationnement sont disponibles en SUS obligatoire (20 000).
Cet appartement combine parfaitement intimité, luminosité et qualité de prestations, dans une résidence récente répondant aux dernières normes, garantissant confort thermique, faibles consommations et sérénité au quotidien.
T2 D'EXCEPTION EN DERNIER ÉTAGE VUE DÉGAGÉE AU COEUR DE BLANQUEFORT
Honoraires à la charge du vendeur. Dans une copropriété de 16 lots. Aucune procédure n'est en cours. DPE en cours. Les informations sur les risques auxquels ce bien est exposé sont disponibles sur le site Géorisques : georisques.gouv.fr.