Située à la limite entre Bruges et Bouscat, cette localisation est très stratégique. A 100 mètres d'un arrêt de tramway reliant centre ville de Bordeaux en 15min seulement. La résidence est à taille humaine, seulement 10 logements, et quelques places de parkings en RDC.
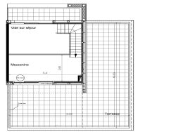
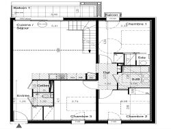
L'implantation de l'appartement permet une vue depuis son séjour sur le parc boisé. Il se compose d'une entrée avec placard, WC Indépendant et cellier (avec attentes pour le lave linge). Ensuite, vous trouverez une magnifique pièce de vie ouverte sur l'extérieur avec une grande baie vitrée et double hauteur sous plafond permettant beaucoup de luminosité. Elle est également prolongée d'un espace mezzanine (chambre d'appoint, salle de jeu, prolongement du séjour ) donnant l'accès à un magnifique rooftop sans vis à vis de 59m2. Coté nuit, vous trouverez d'abord deux chambres (11/12m2) avec placard et salle de bain double vasque, puis une suite parentale avec placard, salle d'eau et balcon attenant.
Une cave ainsi que deux places de parkings en SUS obligatoires complètent ce bien (20 000).
Ce bien saura vous séduire de par ses prestations, son volume ainsi que sa localisation et son prix compétitif.
- Prix TVA 5,5% avec parkings/cave et remise de 7000 en cours : 407 000 - Prix TVA 20% avec parkings/cave et remise de 7000 en cours : 464 000 - Frais de Notaires Réduits - Garanties - RT 2012 - Exonération de Taxe Foncière - ...
Visuel non contractuel suggestion d'aménagement
UNE OPPORTUNITE : ROOFTOP / PIED DE TRAMWAY
Honoraires à la charge du vendeur. Dans une copropriété de 10 lots. Aucune procédure n'est en cours. DPE en cours. Les informations sur les risques auxquels ce bien est exposé sont disponibles sur le site Géorisques : georisques.gouv.fr.