A proximité des transports en commun et de tous les commerces : commune limitrophe de Bordeaux, Cenon a su préserver de nombreux espaces boisés sur son territoire (Parc Palmer, Domaine de Loret,...), tout en bénéficiant du dynamisme économique de la métropole. C'est à l'entrée nord de la ville que se dessine dans cette résidence, à deux pas du centre-commercial et de tous les restaurants des 4 Pavillons, cet appartement en parfait état, à la surface idéalement conçue et optimisée.
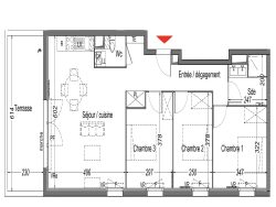
Il se compose d'une entrée avec placard et WC Indépendant. Vous trouverez trois chambres et une salle d'eau double vasque. Vous pourrez profiter d'une magnifique pièce de vie très lumineuse. Deux expositions dont l'exposition sud, prolongé par une terrasse sans vis à vis/vue dégagée, et totalement au calme.
Trois places de parking couvertes et sécurisées complètent ce bien en SUS obligatoire (30 000).
- Prix TVA 20% parking inclus : 269 640 - Frais de Notaires Offerts - Garanties - RT 2012 - Exonération de Taxe Foncière - ...
DERNIER ETAGE/TERRASSE/PARKING - VUE DEGAGEE
Honoraires à la charge du vendeur. Dans une copropriété de 64 lots. Aucune procédure n'est en cours. DPE en cours. Les informations sur les risques auxquels ce bien est exposé sont disponibles sur le site Géorisques : georisques.gouv.fr.