Un Écrin Ancien à Réinventer, au Coeur du Centre Historique
Bordeaux 33000
0
Honoraires à la charge du vendeur.
ARQUETS ANCIENS CHEMINÉES DÉCORATIVES FORT POTENTIEL DE RÉAMÉNAGEMENT
Situé au coeur du centre historique, cet immeuble de caractère bénéficie d'un emplacement privilégié, à proximité immédiate de la basilique et de sa place emblématique. Le quartier séduit par son authenticité, sa vie de quartier animée et la qualité de ses commerces de proximité, tout en restant parfaitement desservi par les transports. L'immeuble fera l'objet d'une rénovation complète de ses parties communes, comprenant notamment la reprise des structures, la rénovation de la toiture et le ravalement de façade, offrant ainsi un cadre pérenne et valorisant pour les années à venir.
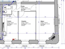
Situé au premier étage, cet appartement T2 d'environ 40 m² séduit immédiatement par ses volumes et son cachet de l'ancien. La hauteur sous plafond exceptionnelle de 3,29 mètres, les parquets anciens et les cheminées décoratives confèrent à l'ensemble une atmosphère chaleureuse et authentique. Les nombreuses ouvertures, équipées de menuiseries bois en double vitrage, apportent une belle luminosité tout au long de la journée et renforcent le confort de vie (belle exposition également). L'appartement dispose aujourd'hui de plusieurs cloisons, offrant une base idéale pour repenser totalement l'agencement.
Ce bien présente un potentiel de réaménagement remarquable. La configuration permet d'envisager la suppression de certaines cloisons afin de créer une grande pièce de vie ouverte, fluide et sans perte de surface, tout en conservant une véritable séparation entre l'espace nuit et l'espace jour. Que ce soit pour une résidence principale de charme, un pied-à-terre bordelais ou un investissement locatif à forte attractivité, ce T2 offre toutes les qualités recherchées pour un projet sur mesure, mêlant cachet de l'ancien et aménagement contemporain, au coeur d'un quartier en constante valorisation.
Une cave voutée complète ce bien.
ARQUETS ANCIENS CHEMINÉES DÉCORATIVES FORT POTENTIEL DE RÉAMÉNAGEMENT
Honoraires à la charge du vendeur. Dans une copropriété de 7 lots. Aucune procédure n'est en cours. DPE en cours. Les informations sur les risques auxquels ce bien est exposé sont disponibles sur le site Géorisques : georisques.gouv.fr.