Un ensemble de bureaux neufs de 2 056 m² divisibles à partir de 160 m²
La Seyne-sur-Mer 83500
0
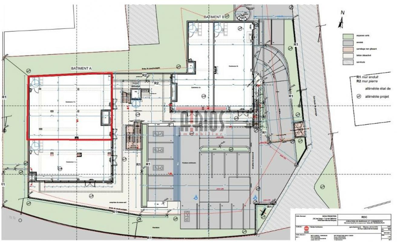
Face à Auchan La Seyne, Atrios Immobilier vous propose à la location en BEFA un ensemble de bureaux (HORUS) de 1 534 m² divisibles à partir de 160 m².
7 lots de 160 à 306 m².
Les atouts de ce programme :
Emplacement N°1 (environnement commercial intense, excellente visibilité, flux, accessibilité autoroute).
Architecture contemporaine (grands plateaux lumineux, végétalisation façades et terrasses, nombreuses terrasses).
Positionnement premium.
Possibilité de parkings supplémentaires.
Certains locaux disposent d'une terrasse.
Possibilité de regrouper les locaux (jusqu'à 750 m² par plateau).
Loyer = 3 076 € HT HC et hors parkings.
Locaux livrés brut, fluides en attente.
Honoraires à la charge du preneur : 15 % HT du loyer annuel HT HC.
160 m²
Contact Jacques BOUSSAROQUE
Contacter gratuitement à l'aide du formulaire ci-dessous.