Découvrez cette magnifique maison toulousaine, située dans un corps de ferme, entièrement réhabilitée, alliant charme et confort sur 132 m² habitables (185 m² au sol) , le tout implantée sur une belle parcelle de plus de 1000 m², à l'abri des regards. Située dans un petit village, cette propriété bénéficie d'un cadre campagnard privilégié, tout en étant non isolée.
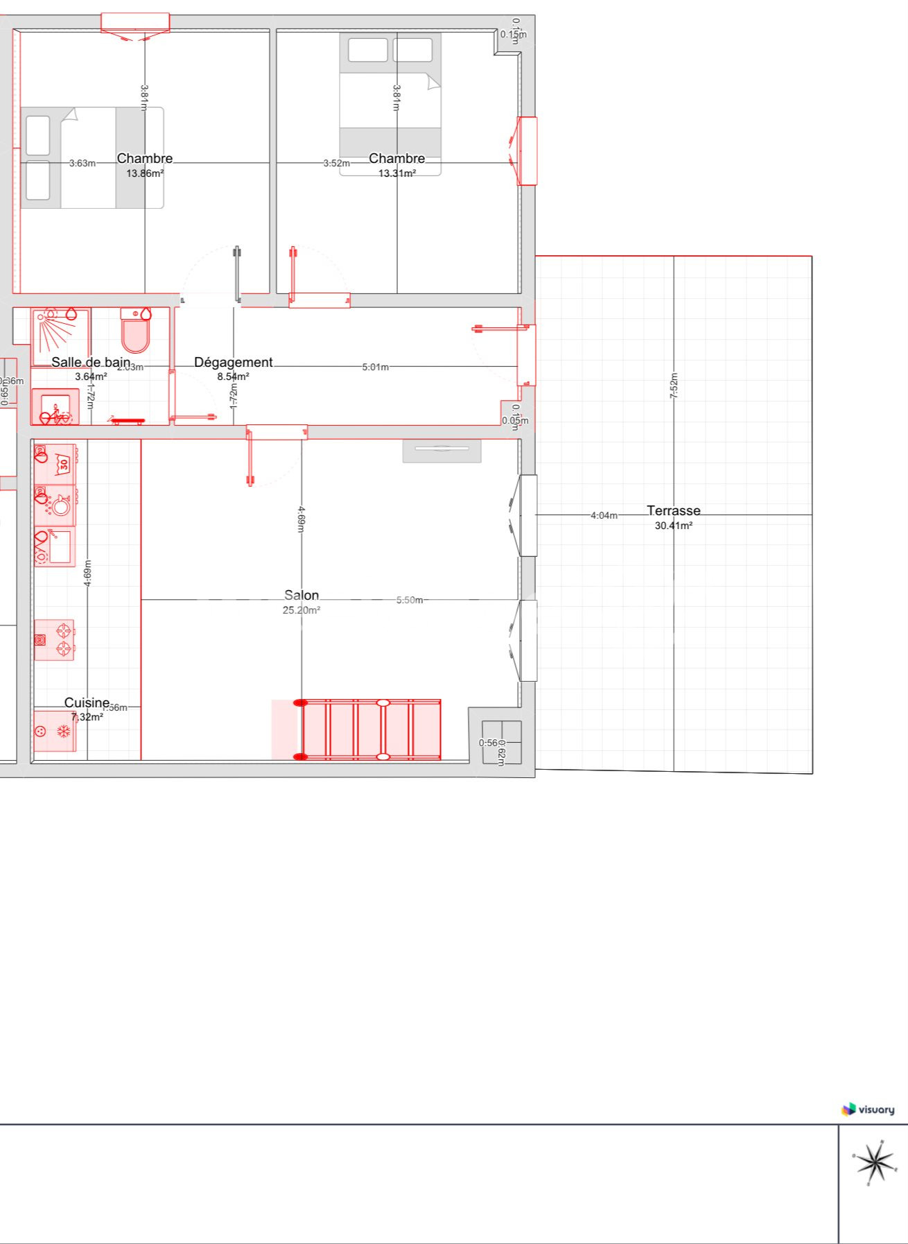
Le spacieux salon séjour de plus de 50 m² s'ouvre sur un jardin enchanteur et une belle terrasse couverte, idéale pour profiter des journées ensoleillées. La cuisine spacieuse et fonctionnelle avec ses 18 m² ,dispose également d'un cellier attenant pour un maximum de praticité. Vous trouverez également 4 chambres chaleureuses avec beau parquet et deux salles d'eau.
Cette réalisation, sur deux niveaux, est complétée par un garage, offrant ainsi un espace de stockage supplémentaire.
Une belle opportunité de vivre dans un cadre paisible et harmonieux !
Cette annonce référence 290137 vous est présentée par votre agent commercial BSK Immobilier DIDIER BERNAT (EI) immatriculé au RSAC de TOULOUSE (31000) sous le numéro 34926316000054.
Prix du bien : 350 000,00 €
Les honoraires d'agence sont à la charge du vendeur.
A propos des performances énergétiques :
Date de réalisation du diagnostic énergétique : 13/12/2023
Score DPE : 202 kWhEP/m²/an
Score GES : 6 kgepCO2/m²/an
Montant estimé des dépenses annuelles d'énergie pour un usage standard : entre 1334.00 € et 1806.00 € par an. Prix moyens des énergies indexés sur l'année 2021 (abonnements compris).
Les informations sur les risques auxquels ce bien est exposé sont disponibles sur le site Géorisques : www.georisques.gouv.fr
132 m²
2 652 €
5
4
1
1
2
1900
Oui
Consommations énergétiques
Logement économe
202
Logement énergivore (kWhEP/m2/an)
Émissions de gaz à effet de serre
Faible émission de GES
6
Forte émission de GES(kgeqCO2/m2/an)
Contact BERNAT Didier
Contacter gratuitement à l'aide du formulaire ci-dessous.